『 REI 』の気まぐれ日記
建築事務所『Studio REI』の代表“TaKe”が携わる仕事や日常の生活を気まぐれに書き綴った日記です。
×
[PR]上記の広告は3ヶ月以上新規記事投稿のないブログに表示されています。新しい記事を書く事で広告が消えます。
最近、打合せや現場へ出る事が多くて
なかなか、事務所で集中して図面を作る時間が
とれていませんでした
先日、「堺市の家」もプランと予算が確定したのですが、
(堺市の家⇒http://ytkimagure.blog.shinobi.jp/Entry/148/)
そんなこんなで、図面作りが思うように進みませんでした
今日は、なんとかまとまった時間がとれたので、
思いっきり集中して図面作りをしました


先行して、確認申請の手続きも進めていますが、
この先は、スムーズに段取りができるように、
もう少し急ぎたいと思います
少し下がり気味です
皆さんのご協力を~

にほんブログ村
↑ ↑
どちらも『ポチッ』と宜しくお願いします!

なかなか、事務所で集中して図面を作る時間が
とれていませんでした

先日、「堺市の家」もプランと予算が確定したのですが、
(堺市の家⇒http://ytkimagure.blog.shinobi.jp/Entry/148/)
そんなこんなで、図面作りが思うように進みませんでした

今日は、なんとかまとまった時間がとれたので、
思いっきり集中して図面作りをしました

先行して、確認申請の手続きも進めていますが、
この先は、スムーズに段取りができるように、
もう少し急ぎたいと思います

少し下がり気味です
皆さんのご協力を~
にほんブログ村
↑ ↑
どちらも『ポチッ』と宜しくお願いします!
PR
以前からレポートしてきた「泉佐野の家」も
そろそろ完成に近づいてきました
(前回の記事⇒http://ytkimagure.blog.shinobi.jp/Entry/160/)
大工工事も終わり、内装工事もほぼ終了というところ…

裏動線にある、名づけて
「Entrance-Walk-Through-Closet」
の内部です。
通常、玄関には“下駄箱”という考え方とは違い、
一番生活動線として、効率の良い場所(家族玄関)
に収納スペースを集約した考え方です
色んな、お客様からすごく好評頂いております

吹抜も良い感じに仕上って
きました!
写真右側は、以前模型で
見てもらった「キャットウォーク」です。

今回、2階ホール廻りに
吹抜の手摺を兼ねて
本棚を製作してもらいました!
ホールにはFreeスペースもあり、本好きのお客様が
ゆっくり読書が楽しめるように・・・とのことでしたので
さて、ホントもう一息で完成!
楽しみですね
↓ ランキング投票 ↓ になります。

にほんブログ村
どちらも、『ポチッ』と宜しくお願いします
そろそろ完成に近づいてきました

(前回の記事⇒http://ytkimagure.blog.shinobi.jp/Entry/160/)
大工工事も終わり、内装工事もほぼ終了というところ…
裏動線にある、名づけて
「Entrance-Walk-Through-Closet」
の内部です。
通常、玄関には“下駄箱”という考え方とは違い、
一番生活動線として、効率の良い場所(家族玄関)
に収納スペースを集約した考え方です

色んな、お客様からすごく好評頂いております

吹抜も良い感じに仕上って
きました!
写真右側は、以前模型で
見てもらった「キャットウォーク」です。
今回、2階ホール廻りに
吹抜の手摺を兼ねて
本棚を製作してもらいました!
ホールにはFreeスペースもあり、本好きのお客様が
ゆっくり読書が楽しめるように・・・とのことでしたので

さて、ホントもう一息で完成!
楽しみですね

↓ ランキング投票 ↓ になります。
にほんブログ村
どちらも、『ポチッ』と宜しくお願いします

先日、毎年楽しみにしているイベントがありました!
それは・・・

ジャジャーン
『大北海道展
』
食欲の秋にはたまらん

平日の夕方なのに、
この賑わい
大盛況でした!

どのブースも「北の大地」
ならではの商品が所狭しと
並んでおりました
今回のお目当ては・・・
海鮮しゅうまい、ロイズのポテトチップチョコ
LeTAOのチーズフロマージュの3点です!
(去年も購入したんですけど
)
昨年とほぼ同じブース配置だったので、スムーズに
お目当て商品は購入できました
ただ、ロイズのポテトチップチョコですが、
新作が出ていましたので、試しに購入

「フロマージュブラン」味!
かなり売れ行き良かったです。
そんで、ご機嫌で帰ろうとした時・・・
見つけちゃいました

ご存知、「花畑牧場」の
生キャラメル!
実は、まだ食べた事が
ありませんでしたので、迷わず購入しちゃいました
(甘いモノ、どんだけ買うねん
)

嬉しかったので、記念撮影

手作り、手作業感たっぷり
の12個入りです!

噂に聞いていたとおり・・・
口の中に入れて数秒で
解けてしまいました
こんな美味しいキャラメル・・・そりゃ売れるわ
満足、満足
ホントは、海鮮(ウニ・カニ・いくら)も食べたかったの
ですが・・・さすがに我慢しておきます
↓ ランキング投票 ↓ になります。

にほんブログ村
1日1回の『ポチッ』を宜しくお願いします!
それは・・・
ジャジャーン

『大北海道展
』食欲の秋にはたまらん

平日の夕方なのに、
この賑わい

大盛況でした!
どのブースも「北の大地」
ならではの商品が所狭しと
並んでおりました

今回のお目当ては・・・
海鮮しゅうまい、ロイズのポテトチップチョコ
LeTAOのチーズフロマージュの3点です!
(去年も購入したんですけど
)昨年とほぼ同じブース配置だったので、スムーズに
お目当て商品は購入できました

ただ、ロイズのポテトチップチョコですが、
新作が出ていましたので、試しに購入

「フロマージュブラン」味!
かなり売れ行き良かったです。
そんで、ご機嫌で帰ろうとした時・・・
見つけちゃいました

ご存知、「花畑牧場」の
生キャラメル!
実は、まだ食べた事が
ありませんでしたので、迷わず購入しちゃいました

(甘いモノ、どんだけ買うねん
)嬉しかったので、記念撮影

手作り、手作業感たっぷり
の12個入りです!
噂に聞いていたとおり・・・
口の中に入れて数秒で
解けてしまいました

こんな美味しいキャラメル・・・そりゃ売れるわ

満足、満足

ホントは、海鮮(ウニ・カニ・いくら)も食べたかったの
ですが・・・さすがに我慢しておきます

↓ ランキング投票 ↓ になります。
にほんブログ村
1日1回の『ポチッ』を宜しくお願いします!
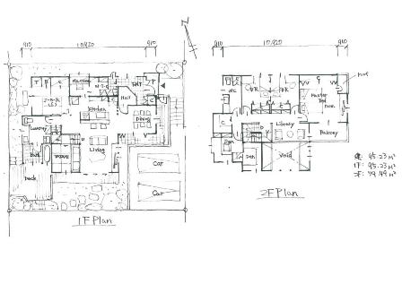
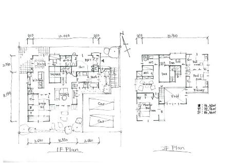
最近、設計業務についての記事が少なくなっていますが・・・
ちゃんと仕事していますので
以前からお話しているモデルハウスプロジェクトについて
(前回の記事⇒http://ytkimagure.blog.shinobi.jp/Entry/166/)
前回の提案を持って打合せをした際に明らかになってきたのですが…
ファーストプランはかなり気に入ってもらっているのですが、
お客様の中でゾーニングについて考えがまとまっていない
部分が少しある事がわかりまして・・・
必要とされる部屋数は決まっているのですが、日当たりや
生活動線から、どうしても優先順位が決められないでいる
様子でした
(まぁ、無理もありませんが
)
そこで、再度条件をまとめ直した上で、大きく2つの方向性に
絞ることになりました
ひとつは、こちらのファーストプランをベースにした案・・・

もうひとつは、建物を平面的にL字型配置にする案です

この2つの中から方向性を決定したいとの事になりました!
いずれにしても、双方が満足できる住宅になる事、
又、モデルハウスとしても見せ場のある建物が
実現できるように、プラスαの提案をしていきたいと思います
↓ ランキング投票 ↓ になります。

にほんブログ村
1日1回『ポチッ』の応援を宜しくお願いします!
ちゃんと仕事していますので

以前からお話しているモデルハウスプロジェクトについて

(前回の記事⇒http://ytkimagure.blog.shinobi.jp/Entry/166/)
前回の提案を持って打合せをした際に明らかになってきたのですが…
ファーストプランはかなり気に入ってもらっているのですが、
お客様の中でゾーニングについて考えがまとまっていない
部分が少しある事がわかりまして・・・

必要とされる部屋数は決まっているのですが、日当たりや
生活動線から、どうしても優先順位が決められないでいる
様子でした
(まぁ、無理もありませんが
)そこで、再度条件をまとめ直した上で、大きく2つの方向性に
絞ることになりました

ひとつは、こちらのファーストプランをベースにした案・・・
もうひとつは、建物を平面的にL字型配置にする案です

この2つの中から方向性を決定したいとの事になりました!
いずれにしても、双方が満足できる住宅になる事、
又、モデルハウスとしても見せ場のある建物が
実現できるように、プラスαの提案をしていきたいと思います

↓ ランキング投票 ↓ になります。
にほんブログ村
1日1回『ポチッ』の応援を宜しくお願いします!
昨夜、建築士仲間との情報交換会へ行ってきました!
「情報交換会」という名の「飲み会」ですが…
今回の会場はこちら
『和韓食 わらいや』さんというお店です
(お店情報⇒http://r.tabelog.com/wakayama/A3001/A300101/30003999/)
スタートの20:00に30分ばかり遅れての到着
初めて行くお店ですが、
韓国料理と聞いていたので
近くまで行くと、
美味しそうな匂いに引き寄せられました!

遅ればせながら、ビール
でカンパーイ
・・・って
ガッついて、半分飲んじゃいました

キムチのせ豆腐やサラダの
お通しを食べた後、
韓国料理定番の「チヂミ」と
奥に見える、生レバーを頂きました
どちらのタレもゴマ油が効いていて、チョー美味しかったです!

続いて・・・
「トリ皮から揚げ」?
だと思います。(自分で頼んでないので
)
そして、メインは・・・

お勧め料理の
「サムゲッチョル」です!
豚肉を鉄板で焼いて
サンチュに薬味と味噌やキムチと一緒に巻いて食べます

初めて食べましたが、
絶妙の辛味噌とキムチが
豚肉にマッチしてGood
美味しかったです。(終盤の写真ですみません
)
辛いモノで、食欲が活性し、引き続いて
「プルコギ」も頂きました・・・が写真忘れ

お酒もどんどん進み、
お腹もいっぱいになって
きたところですが・・・
「さつまいもの天ぷら」
甘くって、スイーツ食べてるみたいでした!
んで、〆はデザートを注文。

「ホットスイーツ」
餅生地にアイスクリーム
や生クリーム
小倉あんや蜂蜜をつけて頂きました!
がっつりお腹に溜まりましたが、甘くて美味しかったです!
んで、肝心の情報交換ですが・・・
某大手ハウスメーカーさんの着工情勢や
現場の施工レベルの話、その他ウラ話など・・・
今回も「為になる話」を聞くことができました
同じ建築業界に働く、仲間ですから色んな情報を持っています。
これからもこういう貴重な時間を大事にして、
自分の仕事に何かひとつでも活用できれば・・・
と感じました
次回は2月頃に開催を約束してほろ酔い
でそれぞれの帰途につきました
皆さん、お疲れ様でした!
↓ ランキング投票 ↓ になります。

にほんブログ村
1日1回の『ポチッ』を宜しくお願いします!
「情報交換会」という名の「飲み会」ですが…

今回の会場はこちら

『和韓食 わらいや』さんというお店です

(お店情報⇒http://r.tabelog.com/wakayama/A3001/A300101/30003999/)
スタートの20:00に30分ばかり遅れての到着

韓国料理と聞いていたので
近くまで行くと、
美味しそうな匂いに引き寄せられました!
遅ればせながら、ビール

でカンパーイ
・・・ってガッついて、半分飲んじゃいました

キムチのせ豆腐やサラダの
お通しを食べた後、
韓国料理定番の「チヂミ」と
奥に見える、生レバーを頂きました

どちらのタレもゴマ油が効いていて、チョー美味しかったです!
続いて・・・
「トリ皮から揚げ」?
だと思います。(自分で頼んでないので
)そして、メインは・・・
お勧め料理の
「サムゲッチョル」です!
豚肉を鉄板で焼いて
サンチュに薬味と味噌やキムチと一緒に巻いて食べます

初めて食べましたが、
絶妙の辛味噌とキムチが
豚肉にマッチしてGood

美味しかったです。(終盤の写真ですみません
)辛いモノで、食欲が活性し、引き続いて
「プルコギ」も頂きました・・・が写真忘れ

お酒もどんどん進み、
お腹もいっぱいになって
きたところですが・・・
「さつまいもの天ぷら」
甘くって、スイーツ食べてるみたいでした!
んで、〆はデザートを注文。
「ホットスイーツ」
餅生地にアイスクリーム
や生クリーム
小倉あんや蜂蜜をつけて頂きました!
がっつりお腹に溜まりましたが、甘くて美味しかったです!
んで、肝心の情報交換ですが・・・
某大手ハウスメーカーさんの着工情勢や
現場の施工レベルの話、その他ウラ話など・・・
今回も「為になる話」を聞くことができました

同じ建築業界に働く、仲間ですから色んな情報を持っています。
これからもこういう貴重な時間を大事にして、
自分の仕事に何かひとつでも活用できれば・・・
と感じました
次回は2月頃に開催を約束してほろ酔いでそれぞれの帰途につきました

皆さん、お疲れ様でした!
↓ ランキング投票 ↓ になります。
にほんブログ村
1日1回の『ポチッ』を宜しくお願いします!
横浜レポート番外編です!
出張の楽しみ・・・
今回もお土産、いっぱい買っちゃいました
・・・とは言え、横浜では見学でスケジュールが
押していましたので、ゆっくり買い物が出来ず
結局、羽田空港
で買うことに
妻からは、しっかりメールでリクエストもありました(笑)

まずは、こちら・・・

『モチフィーユ』だって!
チョコとスポンジを餅生地で
サンドしてありました。
想像以上に、美味しかったです

続いて、こちら・・・
『ねんりん家』って
書いています。
中身は・・・

バウムクーヘンです!
これが、なんとも美味い
周りがカリカリサクサクで、中はしっとり・・・
飲み物無くても食べられる程です!
ダメなバウムは口の中の水分全部取られてしまいますから
もう一度食べたくなる美味しさでした!
そして・・・
今回の妻のリクエスト!
資生堂パーラーの
『ティアチーズ』
高級感たっぷりです!

開けてみました!
なんだか凝縮感も
たっぷりです!

食べてみました!
想像を超える美味しさに
「ほっぺが落ちる」とは
まさにこの事でした
皆さんも、機会があれば是非お試しあれ~
↓ ランキング投票 ↓ になります。

にほんブログ村
1日1回の『ポチッ』を宜しくお願いします!
出張の楽しみ・・・
今回もお土産、いっぱい買っちゃいました

・・・とは言え、横浜では見学でスケジュールが
押していましたので、ゆっくり買い物が出来ず

結局、羽田空港
で買うことに
妻からは、しっかりメールでリクエストもありました(笑)
まずは、こちら・・・
『モチフィーユ』だって!
チョコとスポンジを餅生地で
サンドしてありました。
想像以上に、美味しかったです

続いて、こちら・・・
『ねんりん家』って
書いています。
中身は・・・
バウムクーヘンです!
これが、なんとも美味い

周りがカリカリサクサクで、中はしっとり・・・
飲み物無くても食べられる程です!
ダメなバウムは口の中の水分全部取られてしまいますから

もう一度食べたくなる美味しさでした!
そして・・・
資生堂パーラーの
『ティアチーズ』
高級感たっぷりです!
開けてみました!
なんだか凝縮感も
たっぷりです!
食べてみました!
想像を超える美味しさに
「ほっぺが落ちる」とは
まさにこの事でした

皆さんも、機会があれば是非お試しあれ~

↓ ランキング投票 ↓ になります。
にほんブログ村
1日1回の『ポチッ』を宜しくお願いします!
横浜レポート第3回目です
『ベーリックホール』を出たあと、
コース途中にある
『テニス発祥記念館』へ立ち寄りました。

こちらは外観だけです
んで、ホントの6番目は、
『外交官の家』へ・・・

「山手イタリア山庭園」
という場所みたいです。
外交官の家は、ニューヨーク総領事やトルコ特命全権大使などを
つとめた明治政府の外交官内田定槌氏の邸宅として、
東京渋谷の南平台に明治43(1910)年に建てられました。
設計者はアメリカ人で立教学校の教師として来日、
その後建築家として活躍したJ.M.ガーディナーです。
建物は木造2階建てで塔屋がつき、天然スレート葺きの屋根、
下見板張りの外壁で、華やかな装飾が特徴のアメリカン・ヴィクトリアン
の影響を色濃く残しています。室内は1階に食堂や大小の客間など
重厚な部屋が、2階には寝室や書斎など生活感あふれる部屋が
並んでいます。これらの部屋の家具や装飾にはアール・ヌーボー風の
意匠とともに、アーツ・アンド・クラフツ(19世紀イギリスで展開された
美術工芸の改革運動)のアメリカにおける影響も見られます。
平成9(1997)年に横浜市は、内田定槌氏の孫にあたる宮入氏から
この館の寄贈を受け、山手イタリア山庭園に移築復元し、一般公開しました。
そして同年、国の重要文化財に指定されました。室内は家具や
調度類が再現され、当時の外交官の暮らしを体験できるようになっています。
各展示室では、建物の特徴やガーディナーの作品、
外交官の暮らし等についての資料を展示しています。
また、付属棟には、喫茶スペースが設けられています。

こちらが表・・・

んで、こっちが裏・・・
なんだか裏が表みたいです



模型も発見
です。
で、いよいよ最後の1邸になりました!
7番目に訪れたのが、

『ブラフ18番館』
イタリア山庭園の一郭に移築されたブラフ18番館は、
関東大震災後に山手町45番地に建てられた外国人住宅です。
戦後は天主公教横浜地区(現カトリック横浜司教区)の所有となり、
カトリック山手教会の司祭館として平成3(1991)年まで
使用されてきました。建物は木造2階建てです。
1、2階とも中廊下型の平面構成で、フランス瓦の屋根、
暖炉の煙突、ベイウィンドウ、上げ下げ窓と鎧戸、南側の
バルコニーとサンルームなど、震災前の外国人住宅の特徴を
残しながら、外壁は震災の経験を生かし、防災を考慮した
モルタル吹き付け仕上げとなっています。また、解体時の調査により、
震災前に建築された山手45番地住宅の一部が震災による倒壊と火災を免れ、
部材として利用されていることが判明しました。
平成3年に横浜市が部材の寄付を受け、山手イタリア山庭園内に
移築復元しました。館内は震災復興期(大正末期~昭和初期)の
外国人住宅の暮らしを再現し、元町で製作されていた当時の
横浜家具を復元展示し、平成5(1993)年から一般公開されています。
また、本館につながる付属棟は、貸し出しスペースとして市民に利用されています。


グリーンの色使いが、特に印象的でした!

やはり、模型は全邸に
展示されていましたね

そして、ハロウィンも・・・
これで今回の『横浜山手西洋館』巡りは以上です
古い建物を見ながら、その当時の時代背景や
西洋文化ならではの装飾などすごく勉強になりました。
一言で『建築』と呼ぶには、もったいないと言うか・・・
美術感覚で楽しむのも良いですね!
↓ ランキング投票 ↓ になります。

にほんブログ村
どちらも、『ポチッ』と宜しくお願いします

『ベーリックホール』を出たあと、
コース途中にある
『テニス発祥記念館』へ立ち寄りました。
こちらは外観だけです

んで、ホントの6番目は、
『外交官の家』へ・・・
「山手イタリア山庭園」
という場所みたいです。
外交官の家は、ニューヨーク総領事やトルコ特命全権大使などを
つとめた明治政府の外交官内田定槌氏の邸宅として、
東京渋谷の南平台に明治43(1910)年に建てられました。
設計者はアメリカ人で立教学校の教師として来日、
その後建築家として活躍したJ.M.ガーディナーです。
建物は木造2階建てで塔屋がつき、天然スレート葺きの屋根、
下見板張りの外壁で、華やかな装飾が特徴のアメリカン・ヴィクトリアン
の影響を色濃く残しています。室内は1階に食堂や大小の客間など
重厚な部屋が、2階には寝室や書斎など生活感あふれる部屋が
並んでいます。これらの部屋の家具や装飾にはアール・ヌーボー風の
意匠とともに、アーツ・アンド・クラフツ(19世紀イギリスで展開された
美術工芸の改革運動)のアメリカにおける影響も見られます。
平成9(1997)年に横浜市は、内田定槌氏の孫にあたる宮入氏から
この館の寄贈を受け、山手イタリア山庭園に移築復元し、一般公開しました。
そして同年、国の重要文化財に指定されました。室内は家具や
調度類が再現され、当時の外交官の暮らしを体験できるようになっています。
各展示室では、建物の特徴やガーディナーの作品、
外交官の暮らし等についての資料を展示しています。
また、付属棟には、喫茶スペースが設けられています。
こちらが表・・・
んで、こっちが裏・・・
なんだか裏が表みたいです

模型も発見
です。で、いよいよ最後の1邸になりました!
7番目に訪れたのが、
『ブラフ18番館』
イタリア山庭園の一郭に移築されたブラフ18番館は、
関東大震災後に山手町45番地に建てられた外国人住宅です。
戦後は天主公教横浜地区(現カトリック横浜司教区)の所有となり、
カトリック山手教会の司祭館として平成3(1991)年まで
使用されてきました。建物は木造2階建てです。
1、2階とも中廊下型の平面構成で、フランス瓦の屋根、
暖炉の煙突、ベイウィンドウ、上げ下げ窓と鎧戸、南側の
バルコニーとサンルームなど、震災前の外国人住宅の特徴を
残しながら、外壁は震災の経験を生かし、防災を考慮した
モルタル吹き付け仕上げとなっています。また、解体時の調査により、
震災前に建築された山手45番地住宅の一部が震災による倒壊と火災を免れ、
部材として利用されていることが判明しました。
平成3年に横浜市が部材の寄付を受け、山手イタリア山庭園内に
移築復元しました。館内は震災復興期(大正末期~昭和初期)の
外国人住宅の暮らしを再現し、元町で製作されていた当時の
横浜家具を復元展示し、平成5(1993)年から一般公開されています。
また、本館につながる付属棟は、貸し出しスペースとして市民に利用されています。
グリーンの色使いが、特に印象的でした!
やはり、模型は全邸に
展示されていましたね

そして、ハロウィンも・・・
これで今回の『横浜山手西洋館』巡りは以上です

古い建物を見ながら、その当時の時代背景や
西洋文化ならではの装飾などすごく勉強になりました。
一言で『建築』と呼ぶには、もったいないと言うか・・・
美術感覚で楽しむのも良いですね!
↓ ランキング投票 ↓ になります。
にほんブログ村
どちらも、『ポチッ』と宜しくお願いします

昨日の続きです
3番目に訪れたのは・・・
『山手234番館』

こちらがファサード。
(エリスマン邸の斜め前、山手本通沿いに建つ山手234番館は、
昭和2(1927)年頃外国人向けの共同住宅(アパートメントハウス)として、
現在の敷地に民間業者によって建設されました。
関東大震災により横浜を離れた外国人に戻ってもらうための
復興事業の一つとして建てられ、設計者は、隣接する山手89-6番館
(現えの木てい)と同じ朝香吉蔵です。
建設当時の施設は、4つの同一形式の住戸が、
中央部分の玄関ポーチを挟んで対称的に向かい合い、
上下に重なる構成をもっていました。3LDKの間取りは、
合理的かつコンパクトにまとめられています。また、洋風住宅の
標準的な要素である上げ下げ窓や鎧戸、煙突なども簡素な仕様で
採用され、震災後の洋風住宅の意匠の典型といえます。
建築後、第2次世界大戦後の米軍による接収などを経て、
昭和50年代頃までアパートメントとして使用されていましたが、
平成元(1989)年に横浜市が歴史的景観の保全を目的に取得しました。
平成9(1997)年から保全改修工事を行なうとともに、
平成11(1999)年から一般公開しています。)


元アパートのドアがそのままの名残があります。

模型もちゃんとありました!
続いて、4番目は・・・

『エリスマン邸』
(べーリック・ホールと小道を挟んで移築されているのはエリスマン邸です。
エリスマン邸は、生糸貿易商社シーベルヘグナー商会の横浜支配人
として活躍した、スイス生まれのフリッツ・エリスマン氏の邸宅として、
大正14(1925)年から15(1926)年にかけて山手町127番地に建てられました。
設計は、「現代建築の父」といわれるチェコ出身の建築家アントニン・レーモンドです。
当時は木造2階建て、和館つきで建築面積は約81坪。
屋根はスレート葺、階上は下見板張り、階下は竪羽目張りの白亜の洋館でした。
煙突、ベランダ、屋根窓、上げ下げ窓、鎧戸といった異人館的要素をもちながら、
軒の水平線の強調など、設計者レーモンドの師匠である
世界的建築家F.L.ライトの影響も見られます。
昭和57(1982)年マンション建築のため解体されましたが、
平成2(1990)年元町公園内の現在地(旧山手居留地81番地)に再現されました。
1階には暖炉のある応接室、居間兼食堂、庭を眺めるサンルームなどがあり、
簡潔なデザインを再現しています。椅子やテーブルなどの家具は、
レーモンドが設計したものです。かつて3つの寝室があった2階は、
写真や図面で山手の洋館に関する資料を展示しています。
また、地下ホールは貸し出しスペースとして、昔の厨房部分は、
喫茶コーナーとしてご利用いただけます。)


この邸宅は、
近代3大建築家の一人
フランク・ロイド・ライトの弟子
レーモンドの設計です

んで、こちらが模型。
そして、次が5番目の

『ベーリックホール』
(べーリック・ホール(旧ベリック邸)は、イギリス人貿易商
B.R.ベリック氏の邸宅として、昭和5(1930)年に設計されました。
第二次世界大戦前まで住宅として使用された後、
昭和31(1956)年に遺族より宗教法人カトリック・マリア会に寄付され、
平成12(2000)年まで、セント・ジョセフ・インターナショナル・スクール
の寄宿舎として使用されていました。現存する戦前の
山手外国人住宅の中では最大規模の建物で、設計したのは
アメリカ人建築家J.H.モーガンです。モーガンは山手111番館や
山手聖公会、根岸競馬場など数多くの建築を残しています。
600坪の敷地に立つべーリック・ホールは、スパニッシュスタイル
を基調とし、外観は玄関の3連アーチや、イスラム様式の流れを
くむクワットレフォイルと呼ばれる小窓、瓦屋根をもつ煙突など多彩な
装飾をつけています。内部も、広いリビングやパームルーム、
和風の食堂、白と黒のタイル張りの床、玄関や階段のアイアンワーク、
また子息の部屋の壁はフレスコ技法を用いて復元されているなど、
建築学的にも価値のある建物です。平成13(2001)年横浜市は、
建物が所在する用地を元町公園の拡張区域として買収するとともに、
建物については宗教法人カトリック・マリア会から寄付を受け、
復元・改修等の工事を経て、平成14(2002)年から建物と庭園を公開しています。)



寄宿舎としても利用されていた
だけあって、中は他の邸宅より
随分広かったです!

忘れずに模型も

Vol.3 へ続きます・・・
↓ ランキング投票 ↓ になります。

にほんブログ村
どちらも、『ポチッ』と宜しくお願いします

3番目に訪れたのは・・・
『山手234番館』
こちらがファサード。
(エリスマン邸の斜め前、山手本通沿いに建つ山手234番館は、
昭和2(1927)年頃外国人向けの共同住宅(アパートメントハウス)として、
現在の敷地に民間業者によって建設されました。
関東大震災により横浜を離れた外国人に戻ってもらうための
復興事業の一つとして建てられ、設計者は、隣接する山手89-6番館
(現えの木てい)と同じ朝香吉蔵です。
建設当時の施設は、4つの同一形式の住戸が、
中央部分の玄関ポーチを挟んで対称的に向かい合い、
上下に重なる構成をもっていました。3LDKの間取りは、
合理的かつコンパクトにまとめられています。また、洋風住宅の
標準的な要素である上げ下げ窓や鎧戸、煙突なども簡素な仕様で
採用され、震災後の洋風住宅の意匠の典型といえます。
建築後、第2次世界大戦後の米軍による接収などを経て、
昭和50年代頃までアパートメントとして使用されていましたが、
平成元(1989)年に横浜市が歴史的景観の保全を目的に取得しました。
平成9(1997)年から保全改修工事を行なうとともに、
平成11(1999)年から一般公開しています。)
元アパートのドアがそのままの名残があります。
模型もちゃんとありました!
続いて、4番目は・・・
『エリスマン邸』
(べーリック・ホールと小道を挟んで移築されているのはエリスマン邸です。
エリスマン邸は、生糸貿易商社シーベルヘグナー商会の横浜支配人
として活躍した、スイス生まれのフリッツ・エリスマン氏の邸宅として、
大正14(1925)年から15(1926)年にかけて山手町127番地に建てられました。
設計は、「現代建築の父」といわれるチェコ出身の建築家アントニン・レーモンドです。
当時は木造2階建て、和館つきで建築面積は約81坪。
屋根はスレート葺、階上は下見板張り、階下は竪羽目張りの白亜の洋館でした。
煙突、ベランダ、屋根窓、上げ下げ窓、鎧戸といった異人館的要素をもちながら、
軒の水平線の強調など、設計者レーモンドの師匠である
世界的建築家F.L.ライトの影響も見られます。
昭和57(1982)年マンション建築のため解体されましたが、
平成2(1990)年元町公園内の現在地(旧山手居留地81番地)に再現されました。
1階には暖炉のある応接室、居間兼食堂、庭を眺めるサンルームなどがあり、
簡潔なデザインを再現しています。椅子やテーブルなどの家具は、
レーモンドが設計したものです。かつて3つの寝室があった2階は、
写真や図面で山手の洋館に関する資料を展示しています。
また、地下ホールは貸し出しスペースとして、昔の厨房部分は、
喫茶コーナーとしてご利用いただけます。)
この邸宅は、
近代3大建築家の一人
フランク・ロイド・ライトの弟子
レーモンドの設計です

んで、こちらが模型。
そして、次が5番目の
『ベーリックホール』
(べーリック・ホール(旧ベリック邸)は、イギリス人貿易商
B.R.ベリック氏の邸宅として、昭和5(1930)年に設計されました。
第二次世界大戦前まで住宅として使用された後、
昭和31(1956)年に遺族より宗教法人カトリック・マリア会に寄付され、
平成12(2000)年まで、セント・ジョセフ・インターナショナル・スクール
の寄宿舎として使用されていました。現存する戦前の
山手外国人住宅の中では最大規模の建物で、設計したのは
アメリカ人建築家J.H.モーガンです。モーガンは山手111番館や
山手聖公会、根岸競馬場など数多くの建築を残しています。
600坪の敷地に立つべーリック・ホールは、スパニッシュスタイル
を基調とし、外観は玄関の3連アーチや、イスラム様式の流れを
くむクワットレフォイルと呼ばれる小窓、瓦屋根をもつ煙突など多彩な
装飾をつけています。内部も、広いリビングやパームルーム、
和風の食堂、白と黒のタイル張りの床、玄関や階段のアイアンワーク、
また子息の部屋の壁はフレスコ技法を用いて復元されているなど、
建築学的にも価値のある建物です。平成13(2001)年横浜市は、
建物が所在する用地を元町公園の拡張区域として買収するとともに、
建物については宗教法人カトリック・マリア会から寄付を受け、
復元・改修等の工事を経て、平成14(2002)年から建物と庭園を公開しています。)
寄宿舎としても利用されていた
だけあって、中は他の邸宅より
随分広かったです!
忘れずに模型も

Vol.3 へ続きます・・・
↓ ランキング投票 ↓ になります。
にほんブログ村
どちらも、『ポチッ』と宜しくお願いします

はぁ~
さすがに昨日は疲れました
『横浜 山手西洋館』巡り・・・
沢山見学してきたので、何回かに分けてレポートしますね

心配していた天気も
台風が過ぎて、快晴
飛行機からの眺めもサイコーです。
羽田空港到着後はバスで山下公園方面へ移動
そこからは、全て徒歩で移動となります

西洋館へ行く前に、
迎賓館の前を通ったので、
まずは1枚
そこから15分くらい歩いて、

「港の見える丘公園」へ到着!
ここが西洋館巡りのスタートに
なります。

折角の眺めなので、
ここでも1枚
奥に見えるのが「横浜ベイブリッジ」!
少し休憩してから、最初の館へ・・・

1番目。『横浜市イギリス館』へ。
(イギリス館は、昭和12(1937)年に上海の大英工部総署の設計によって、
英国総領事公邸として、現在の地に建てられました。
鉄筋コンクリート2階建てで、広い敷地と建物規模をもち、
東アジアにある領事公邸の中でも、上位に格付けられていました。
主屋の1階の南側には西からサンポーチ、客間、食堂が並び、
広々としたテラスから芝生の庭につながっています。
2階には寝室や化粧室が配置され、広い窓から庭や港を眺望できます。
地下にはワインセラーもあり、東側につく付属屋は使用人の住居として
使用されていました。
玄関脇にはめ込まれた王冠入りの銘版(ジョージⅥ世の時代)や、
正面脇の銅板(British Consular Residence)が、旧英国総領事公邸で
あった由緒を示しています。昭和44(1969)年に横浜市が取得し、
1階ホールはコンサートに、2階集会室は会議等に利用されています。
また、平成14(2002)年からは2階展示室と復元された寝室を一般公開しています。)

こちらが、ファサード。


さすがは総領事公邸。豪華なしつらえでした。

模型も展示されていました。
続いて、2番目。

『山手111番館』。
(イギリス館の南側、噴水広場を挟んで立っている
スパニッシュスタイルの洋館が、山手111番館です。
ワシン坂通りに面した広い芝生を前庭とし、
ローズガーデンを見下ろす建物は、大正15(1926)年に
アメリカ人ラフィン氏の住宅として現在地に設計されました。
設計者は、べーリック・ホールを設計したJ.H.モーガンです。
玄関前の3連アーチが同じ意匠ですが、こちらは天井がなく
パーゴラになっているため、異なる印象を与えています。
大正9(1920)年に来日したモーガンは、横浜を中心に数多くの
作品を残していますが、山手111番館は彼の代表作の一つと言えるでしょう。
赤い瓦屋根に白壁の建物は地階がコンクリート、地上が木造2階建ての寄棟作りです。
創建当時は、地階部分にガレージや使用人部屋、1階に吹き抜けの
ホール、厨房、食堂と居室、2階は海を見晴らす寝室と回廊、
スリーピングポーチを配していました。横浜市は、平成8(1996)年に敷地を取得し、
建物の寄贈を受けて保存、改修工事をおこない平成11(1999)年から一般公開しています。
館内は昭和初期の洋館を体験できるよう家具などを配し、
設計者モーガンに関する展示等もおこなっています。
現在、ローズガーデンから入る地階部分は、喫茶スペースとして利用されています。)


それほど大きな館じゃないんですが、
吹抜けとキャットウォークの高さ感の比率が
絶妙で、すごく広く見えました。




庇部分の持ち出しが、どこか日本風でした。
異国文化との融合ですね。

ここにも模型、ありました!
次回へつづく・・・
↓ ランキング投票 ↓ になります。

にほんブログ村
どちらも、『ポチッ』と宜しくお願いします
さすがに昨日は疲れました
『横浜 山手西洋館』巡り・・・
沢山見学してきたので、何回かに分けてレポートしますね

心配していた天気も
台風が過ぎて、快晴

飛行機からの眺めもサイコーです。
羽田空港到着後はバスで山下公園方面へ移動

そこからは、全て徒歩で移動となります

西洋館へ行く前に、
迎賓館の前を通ったので、
まずは1枚

そこから15分くらい歩いて、
「港の見える丘公園」へ到着!
ここが西洋館巡りのスタートに
なります。
折角の眺めなので、
ここでも1枚

奥に見えるのが「横浜ベイブリッジ」!
少し休憩してから、最初の館へ・・・
1番目。『横浜市イギリス館』へ。
(イギリス館は、昭和12(1937)年に上海の大英工部総署の設計によって、
英国総領事公邸として、現在の地に建てられました。
鉄筋コンクリート2階建てで、広い敷地と建物規模をもち、
東アジアにある領事公邸の中でも、上位に格付けられていました。
主屋の1階の南側には西からサンポーチ、客間、食堂が並び、
広々としたテラスから芝生の庭につながっています。
2階には寝室や化粧室が配置され、広い窓から庭や港を眺望できます。
地下にはワインセラーもあり、東側につく付属屋は使用人の住居として
使用されていました。
玄関脇にはめ込まれた王冠入りの銘版(ジョージⅥ世の時代)や、
正面脇の銅板(British Consular Residence)が、旧英国総領事公邸で
あった由緒を示しています。昭和44(1969)年に横浜市が取得し、
1階ホールはコンサートに、2階集会室は会議等に利用されています。
また、平成14(2002)年からは2階展示室と復元された寝室を一般公開しています。)
こちらが、ファサード。
さすがは総領事公邸。豪華なしつらえでした。
模型も展示されていました。
続いて、2番目。
『山手111番館』。
(イギリス館の南側、噴水広場を挟んで立っている
スパニッシュスタイルの洋館が、山手111番館です。
ワシン坂通りに面した広い芝生を前庭とし、
ローズガーデンを見下ろす建物は、大正15(1926)年に
アメリカ人ラフィン氏の住宅として現在地に設計されました。
設計者は、べーリック・ホールを設計したJ.H.モーガンです。
玄関前の3連アーチが同じ意匠ですが、こちらは天井がなく
パーゴラになっているため、異なる印象を与えています。
大正9(1920)年に来日したモーガンは、横浜を中心に数多くの
作品を残していますが、山手111番館は彼の代表作の一つと言えるでしょう。
赤い瓦屋根に白壁の建物は地階がコンクリート、地上が木造2階建ての寄棟作りです。
創建当時は、地階部分にガレージや使用人部屋、1階に吹き抜けの
ホール、厨房、食堂と居室、2階は海を見晴らす寝室と回廊、
スリーピングポーチを配していました。横浜市は、平成8(1996)年に敷地を取得し、
建物の寄贈を受けて保存、改修工事をおこない平成11(1999)年から一般公開しています。
館内は昭和初期の洋館を体験できるよう家具などを配し、
設計者モーガンに関する展示等もおこなっています。
現在、ローズガーデンから入る地階部分は、喫茶スペースとして利用されています。)
それほど大きな館じゃないんですが、
吹抜けとキャットウォークの高さ感の比率が
絶妙で、すごく広く見えました。
庇部分の持ち出しが、どこか日本風でした。
異国文化との融合ですね。
ここにも模型、ありました!
次回へつづく・・・
↓ ランキング投票 ↓ になります。
にほんブログ村
どちらも、『ポチッ』と宜しくお願いします

カレンダー
| 12 | 2026/01 | 02 |
| S | M | T | W | T | F | S |
|---|---|---|---|---|---|---|
| 1 | 2 | 3 | ||||
| 4 | 5 | 6 | 7 | 8 | 9 | 10 |
| 11 | 12 | 13 | 14 | 15 | 16 | 17 |
| 18 | 19 | 20 | 21 | 22 | 23 | 24 |
| 25 | 26 | 27 | 28 | 29 | 30 | 31 |
カウンター
プロフィール
HN:
TaKe 嶽下 康弘(タケシタ ヤスヒロ)
年齢:
47
HP:
性別:
男性
誕生日:
1978/07/05
職業:
一級建築士
趣味:
グルメ、ジョギング、ファッション、お笑い、パソコン、ギター、イタリア等
自己紹介:
大阪・堺市の建築事務所
『Studio REI』 の代表です。
ブログは気まぐれですが、
気楽に続けようと思います。
コメントやリンクも
お待ちしております(^_^)v
『Studio REI』 の代表です。
ブログは気まぐれですが、
気楽に続けようと思います。
コメントやリンクも
お待ちしております(^_^)v
最新コメント
[03/27 KennethBof]
[04/28 Take]
[03/14 かな]
[04/07 Take]
[04/07 HAL]
[03/13 Take]
[03/11 haru]
[10/04 Take]
[10/03 HAL]
[07/02 Take]
[06/30 かな]
[02/05 Take]
[02/04 きままなマーシャ]
[02/01 Take]
[02/01 Take]
カテゴリー
お気に入り Blog リンク
リンク
石田歯科医院・大阪府和泉市
S design 一級建築士事務所
オオハタミツオ建築設計事務所
不動産買取専門店 ユニバーサル
(一社)和歌山県建築士会
アーキテクツ・スタジオ・ジャパン㈱
建築家紹介センター
建物を建てたい方にお近くの建築家を紹介
店舗設計紹介サービス
店舗を新築・改装したい方に店舗設計事務所・デザイナーを紹介
最新記事
(11/17)
(10/31)
(10/02)
(09/30)
(09/25)
アーカイブ
ブログ内検索
アクセス解析





