『 REI 』の気まぐれ日記
建築事務所『Studio REI』の代表“TaKe”が携わる仕事や日常の生活を気まぐれに書き綴った日記です。
×
[PR]上記の広告は3ヶ月以上新規記事投稿のないブログに表示されています。新しい記事を書く事で広告が消えます。
最近、なんだかんだで外出する用事が多く、
作成しなければならない図面が溜まっているのですが…
中々、まとまった時間が取れてなくて
そんな中、今日は久々に1日予定も空いていたので
集中して図面を作ろう!…と朝から頑張りました
おかげで、明日の打合せに間に合わせる事が出来ました
ホントはギリギリの仕事は良くないのですが…


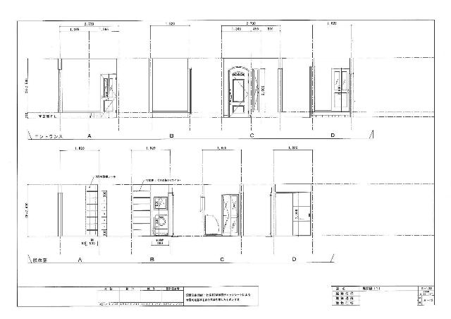
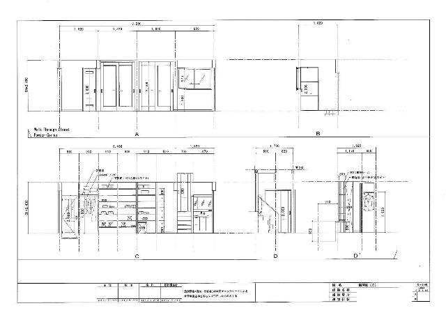
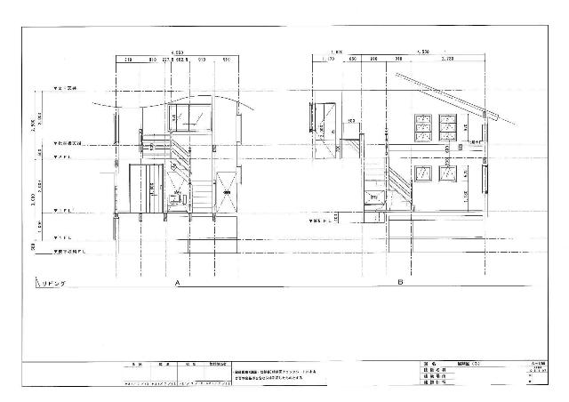
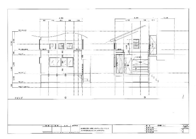
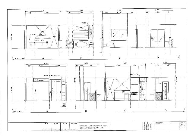
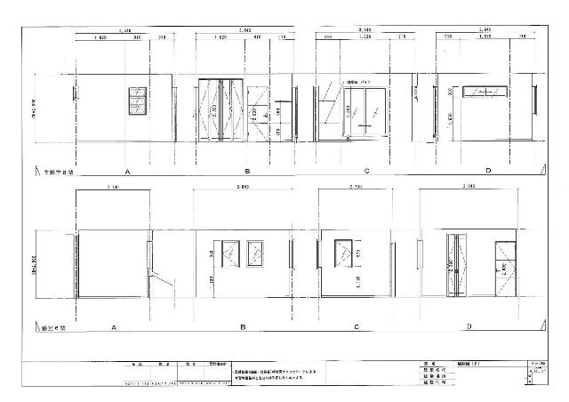
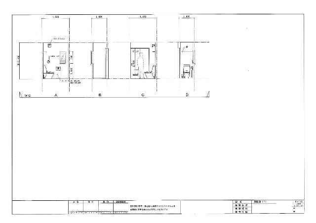
大阪府は泉佐野市で建築予定の住宅です
先日から ↑ 模型
でイメージは完成していたのですが…
打合せ用に内部の図面を作っていました







他、数枚…
まぁ、一日の作業にしては
かなり頑張ったと思います
素人のお客様には、図面だけでは理解しづらいので
模型その他、実例写真やCGなども用いて、
ビジュアルかつデジタルに伝える事が重要です。
『建築』の図面って素人には難しいですからね
結構、神経使うトコロです
いよいよ、明日で打合せも大詰めです

またまた、ランク下がり気味です
100位圏内目指して頑張ります!
↑ クリック応援ヨロシクですm(_ _)m
※ブログランキングに参加しています。
作成しなければならない図面が溜まっているのですが…
中々、まとまった時間が取れてなくて

そんな中、今日は久々に1日予定も空いていたので
集中して図面を作ろう!…と朝から頑張りました

おかげで、明日の打合せに間に合わせる事が出来ました

ホントはギリギリの仕事は良くないのですが…

大阪府は泉佐野市で建築予定の住宅です

先日から ↑ 模型
でイメージは完成していたのですが…打合せ用に内部の図面を作っていました

他、数枚…
まぁ、一日の作業にしては
かなり頑張ったと思います

素人のお客様には、図面だけでは理解しづらいので
模型その他、実例写真やCGなども用いて、
ビジュアルかつデジタルに伝える事が重要です。
『建築』の図面って素人には難しいですからね

結構、神経使うトコロです

いよいよ、明日で打合せも大詰めです

またまた、ランク下がり気味です
100位圏内目指して頑張ります!
↑ クリック応援ヨロシクですm(_ _)m
※ブログランキングに参加しています。
PR
コメントをどうぞ。
カレンダー
| 10 | 2025/11 | 12 |
| S | M | T | W | T | F | S |
|---|---|---|---|---|---|---|
| 1 | ||||||
| 2 | 3 | 4 | 5 | 6 | 7 | 8 |
| 9 | 10 | 11 | 12 | 13 | 14 | 15 |
| 16 | 17 | 18 | 19 | 20 | 21 | 22 |
| 23 | 24 | 25 | 26 | 27 | 28 | 29 |
| 30 |
カウンター
プロフィール
HN:
TaKe 嶽下 康弘(タケシタ ヤスヒロ)
年齢:
47
HP:
性別:
男性
誕生日:
1978/07/05
職業:
一級建築士
趣味:
グルメ、ジョギング、ファッション、お笑い、パソコン、ギター、イタリア等
自己紹介:
大阪・堺市の建築事務所
『Studio REI』 の代表です。
ブログは気まぐれですが、
気楽に続けようと思います。
コメントやリンクも
お待ちしております(^_^)v
『Studio REI』 の代表です。
ブログは気まぐれですが、
気楽に続けようと思います。
コメントやリンクも
お待ちしております(^_^)v
最新コメント
[03/27 KennethBof]
[04/28 Take]
[03/14 かな]
[04/07 Take]
[04/07 HAL]
[03/13 Take]
[03/11 haru]
[10/04 Take]
[10/03 HAL]
[07/02 Take]
[06/30 かな]
[02/05 Take]
[02/04 きままなマーシャ]
[02/01 Take]
[02/01 Take]
カテゴリー
お気に入り Blog リンク
リンク
石田歯科医院・大阪府和泉市
S design 一級建築士事務所
オオハタミツオ建築設計事務所
不動産買取専門店 ユニバーサル
(一社)和歌山県建築士会
アーキテクツ・スタジオ・ジャパン㈱
建築家紹介センター
建物を建てたい方にお近くの建築家を紹介
店舗設計紹介サービス
店舗を新築・改装したい方に店舗設計事務所・デザイナーを紹介
最新記事
(11/17)
(10/31)
(10/02)
(09/30)
(09/25)
アーカイブ
ブログ内検索
アクセス解析






