『 REI 』の気まぐれ日記
建築事務所『Studio REI』の代表“TaKe”が携わる仕事や日常の生活を気まぐれに書き綴った日記です。
×
[PR]上記の広告は3ヶ月以上新規記事投稿のないブログに表示されています。新しい記事を書く事で広告が消えます。
先日、依頼を受けた新築計画がありまして・・・
2~3日前から、そのプランを
あーでもない
こーでもない
・・・と考えていたのですが、
ようやく案がまとまりました
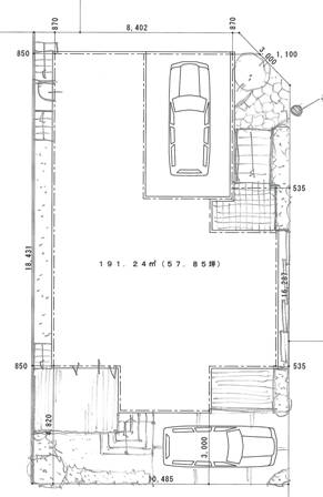
今回の建築予定地は、大阪府堺市某所。
主要駅から徒歩5分と、なかなか無い好立地!
角地の良い場所でした!
ちなみに土地だけで、
片手
は軽くOVER
私達庶民には、ありえない場所ですねぇ
建物はガレージ付や屋上庭園、大容量床下空間など
色んな提案を希望。
楽しそうだな~
という感じで取り掛かりましたが・・・
「家相」を重視ということもあり、以外に苦戦・・・
そんなこんなで、なんとかプランがまとまりました
苦戦したものの、自分でも納得のいく内容になりました!
これからプレゼン作りにとりかかろうと思います
頑張りますっ

今日もポチッと、応援をお願いします!
※ブログランキングに参加しています。
以前から、見積り・検討を繰り返しておりました、
(http://ytkimagure.blog.shinobi.jp/Entry/16/)
(http://ytkimagure.blog.shinobi.jp/Entry/54/)
新車
購入の件ですが…
↓
↓
↓
↓
↓
↓
↓
↓
買う事に決めちゃいました
・・・というのも、今の車
が車検切れ間近で、
早く決めないと、乗れる車
が無くなってしまうのです
知人伝いに、金額
も安くなりましたし

妻の
も出て、言うことなし

無事、契約も済みました!
ちなみに、納車予定は9月上旬との事で、
車検切れもやむを得ずかも・・・
早く決めておけば良かった


(http://ytkimagure.blog.shinobi.jp/Entry/16/)
(http://ytkimagure.blog.shinobi.jp/Entry/54/)
新車
購入の件ですが…↓
↓
↓
↓
↓
↓
↓
↓
買う事に決めちゃいました

・・・というのも、今の車
が車検切れ間近で、早く決めないと、乗れる車
が無くなってしまうのです
知人伝いに、金額
も安くなりましたし

妻の

も出て、言うことなし
無事、契約も済みました!
ちなみに、納車予定は9月上旬との事で、
車検切れもやむを得ずかも・・・

早く決めておけば良かった



今日もポチポチ運動で応援をお願いします!
※ブログランキングに参加しています。
設計した家
が完成して、お客様が入居されると
特に用事がなければ、あまり訪問する回数も減ってきます
ですので、たまにブラっと様子伺いにお邪魔したりします
やはり、自分が手がけた家
ですから、
思い入れもありますし、その当時のエピソードなど
お客様と話するのも楽しいですし・・・
何より、実際に入居後の感想なども是非聞きたいところです
・・・という事で今年の2月に完成したお客様を訪問!

玄関のニッチには、
ご友人からの贈り物で
プリザーブドフラワーが
飾られていました
よく、マッチしてて良い感じです


作品としての家
も
やはり人が生活する場ですし
「住みやすい」が何より前提
だと思います。
やはりお邪魔するとその生活感が感じられ、
建物単体で見るのとは、全く雰囲気が変わります。
そんな話もお客様と交えながら、手作りのフィナンシェと
お茶をご馳走になりました
住まい手なりに細部を工夫しながら、楽しんで
作品である「家」を使ってもらっている姿を見て
更に頑張ろう
という意欲が沸いてきました
やっぱり、こういうのがこの仕事の良いところですね
が完成して、お客様が入居されると特に用事がなければ、あまり訪問する回数も減ってきます

ですので、たまにブラっと様子伺いにお邪魔したりします

やはり、自分が手がけた家
ですから、思い入れもありますし、その当時のエピソードなど
お客様と話するのも楽しいですし・・・

何より、実際に入居後の感想なども是非聞きたいところです

・・・という事で今年の2月に完成したお客様を訪問!
玄関のニッチには、
ご友人からの贈り物で
プリザーブドフラワーが
飾られていました

よく、マッチしてて良い感じです


作品としての家
もやはり人が生活する場ですし
「住みやすい」が何より前提
だと思います。
やはりお邪魔するとその生活感が感じられ、
建物単体で見るのとは、全く雰囲気が変わります。
そんな話もお客様と交えながら、手作りのフィナンシェと
お茶をご馳走になりました

住まい手なりに細部を工夫しながら、楽しんで
作品である「家」を使ってもらっている姿を見て
更に頑張ろう
という意欲が沸いてきました
やっぱり、こういうのがこの仕事の良いところですね

ありがとうございます!
100位内にランクINです!!
更に上目指してポチポチ応援お願いします。
今日も、めちゃくちゃ暑い
一日でした
西日本はまだ梅雨明けしていないとはいえ、
天気
が数日続いています
まぁ、現場の工事
はスムーズに進むので
良いのは良いのですが・・・
今日は、先日確認申請が下り、スタートした現場
の確認に行ってきました

現場は高台で段差は人の背丈ほど軽くあるでしょうか
今回は、駐車スペースもそれ程余裕が無い為、
高基礎(深基礎)形式を採用しました
今日はその高基礎部分の配筋のチェックです

しっかり配筋できていました

それにしても結構な高さです
落ちないように、気をつけなければ(笑)
今はこの状態ですが、コンクリートを打設して、
基礎が完成すると、また印象が全然変わるのです
着々と進んでいくのが楽しみです
一日でした
西日本はまだ梅雨明けしていないとはいえ、
天気
が数日続いています
まぁ、現場の工事
はスムーズに進むので良いのは良いのですが・・・
今日は、先日確認申請が下り、スタートした現場
の確認に行ってきました


現場は高台で段差は人の背丈ほど軽くあるでしょうか

今回は、駐車スペースもそれ程余裕が無い為、
高基礎(深基礎)形式を採用しました

今日はその高基礎部分の配筋のチェックです

しっかり配筋できていました

それにしても結構な高さです

落ちないように、気をつけなければ(笑)
今はこの状態ですが、コンクリートを打設して、
基礎が完成すると、また印象が全然変わるのです

着々と進んでいくのが楽しみです

今日もポチポチッと応援ヨロシクお願いします!
※ブログランキングに参加しています。
最近、水廻りの事について書くことが多いですが
今日は、洗面脱衣室について考えてみます
仕事柄、住宅
の図面や実物を見ることが
多いのですが・・・
一般的に住宅では洗面室と脱衣室って1室に
なっている事がほとんどです。
マンション等はスペース上、特にだと思いますが・・・
洗面室は顔を洗ったり、歯を磨いたり、ヘアセットしたり・・・
脱衣室は入浴前後の着替えや洗濯機置場を兼ねている
事も多いです。こう見ると、それぞれは全く違う用途で
使用されるのですが、スペースの都合でしょうか?
1室になる事が多いのです
・・・で、以前から私がお客様に提案しているのが、

この方法です
洗面室と脱衣室を2つに分けます!
それぞれのスペースは最低限でいいのですが、
「分ける」という事でメリットがあります。
①来客に洗面台を使ってもらっても、他人に見せたくない
洗濯場を見られない。
②家族が入浴中でも、気兼ねなく洗面台が使用できる。
特に、年頃のお嬢さんが居る家庭にも最適。
③リゾートホテルのような上質感が味わえる。
・・・とこんなところですかね
でも、以外と喜ばれることが多いのは確かです
まぁ、全ての家族にあてはまる訳ではないですが・・・
そのお客様の暮らしに合う提案をしていこうと思います


今日は、洗面脱衣室について考えてみます

仕事柄、住宅
の図面や実物を見ることが多いのですが・・・
一般的に住宅では洗面室と脱衣室って1室に
なっている事がほとんどです。
マンション等はスペース上、特にだと思いますが・・・
洗面室は顔を洗ったり、歯を磨いたり、ヘアセットしたり・・・
脱衣室は入浴前後の着替えや洗濯機置場を兼ねている
事も多いです。こう見ると、それぞれは全く違う用途で
使用されるのですが、スペースの都合でしょうか?
1室になる事が多いのです

・・・で、以前から私がお客様に提案しているのが、
この方法です
洗面室と脱衣室を2つに分けます!
それぞれのスペースは最低限でいいのですが、
「分ける」という事でメリットがあります。
①来客に洗面台を使ってもらっても、他人に見せたくない
洗濯場を見られない。
②家族が入浴中でも、気兼ねなく洗面台が使用できる。
特に、年頃のお嬢さんが居る家庭にも最適。
③リゾートホテルのような上質感が味わえる。
・・・とこんなところですかね

でも、以外と喜ばれることが多いのは確かです

まぁ、全ての家族にあてはまる訳ではないですが・・・
そのお客様の暮らしに合う提案をしていこうと思います


ポチポチッと応援ヨロシクお願いします!
※ブログランキングに参加しています。
梅雨がまだ明けないのに、梅雨が明けたかのような
日中
の暑さです
いいかげん、暑過ぎます
夜になると、寝苦しいとは言え、少し涼しくなるので
ホッ
とします。
暑くて、汗ばむと体も余計に疲れますねぇ

疲れたときは、やっぱり・・・
甘いモノですねぇ
なんだかしばらく食べていなかった
ので、むしょうに食べたくなりました

我が家御用達の
『ケーニヒス クローネ
』
のプリン
です!
見るからに・・・上質な感じがします。
美味しいに違いないでしょう・・・

さっそく・・・
なんとも、やわらかくて
とろける感覚
甘くておいしい
しかも、カップの底には栗(マロン)がたっぷりでした
このプリンは初めてだけど、かなり気に入りました!
おかげで、疲れも少しとれた(!?)気分です(笑)
日中
の暑さです
いいかげん、暑過ぎます
夜になると、寝苦しいとは言え、少し涼しくなるので
ホッ
とします。暑くて、汗ばむと体も余計に疲れますねぇ


疲れたときは、やっぱり・・・
甘いモノですねぇ
なんだかしばらく食べていなかったので、むしょうに食べたくなりました

我が家御用達の
『ケーニヒス クローネ
』のプリン
です!見るからに・・・上質な感じがします。
美味しいに違いないでしょう・・・
さっそく・・・
なんとも、やわらかくて
とろける感覚

甘くておいしい

しかも、カップの底には栗(マロン)がたっぷりでした

このプリンは初めてだけど、かなり気に入りました!
おかげで、疲れも少しとれた(!?)気分です(笑)
ポチッと今日も応援ヨロシクお願いします!
※ブログランキングに参加しています。
カレンダー
| 12 | 2026/01 | 02 |
| S | M | T | W | T | F | S |
|---|---|---|---|---|---|---|
| 1 | 2 | 3 | ||||
| 4 | 5 | 6 | 7 | 8 | 9 | 10 |
| 11 | 12 | 13 | 14 | 15 | 16 | 17 |
| 18 | 19 | 20 | 21 | 22 | 23 | 24 |
| 25 | 26 | 27 | 28 | 29 | 30 | 31 |
カウンター
プロフィール
HN:
TaKe 嶽下 康弘(タケシタ ヤスヒロ)
年齢:
47
HP:
性別:
男性
誕生日:
1978/07/05
職業:
一級建築士
趣味:
グルメ、ジョギング、ファッション、お笑い、パソコン、ギター、イタリア等
自己紹介:
大阪・堺市の建築事務所
『Studio REI』 の代表です。
ブログは気まぐれですが、
気楽に続けようと思います。
コメントやリンクも
お待ちしております(^_^)v
『Studio REI』 の代表です。
ブログは気まぐれですが、
気楽に続けようと思います。
コメントやリンクも
お待ちしております(^_^)v
最新コメント
[03/27 KennethBof]
[04/28 Take]
[03/14 かな]
[04/07 Take]
[04/07 HAL]
[03/13 Take]
[03/11 haru]
[10/04 Take]
[10/03 HAL]
[07/02 Take]
[06/30 かな]
[02/05 Take]
[02/04 きままなマーシャ]
[02/01 Take]
[02/01 Take]
カテゴリー
お気に入り Blog リンク
リンク
石田歯科医院・大阪府和泉市
S design 一級建築士事務所
オオハタミツオ建築設計事務所
不動産買取専門店 ユニバーサル
(一社)和歌山県建築士会
アーキテクツ・スタジオ・ジャパン㈱
建築家紹介センター
建物を建てたい方にお近くの建築家を紹介
店舗設計紹介サービス
店舗を新築・改装したい方に店舗設計事務所・デザイナーを紹介
最新記事
(11/17)
(10/31)
(10/02)
(09/30)
(09/25)
アーカイブ
ブログ内検索
アクセス解析





見えにくい… 朝から

がかかるみたいです
・・・なんか写真
の左側が気になります
