『 REI 』の気まぐれ日記
建築事務所『Studio REI』の代表“TaKe”が携わる仕事や日常の生活を気まぐれに書き綴った日記です。
×
[PR]上記の広告は3ヶ月以上新規記事投稿のないブログに表示されています。新しい記事を書く事で広告が消えます。
先日の新潟出張のお土産を紹介・・・
(新潟出張⇒http://ytkimagure.blog.shinobi.jp/Entry/206/)

いつも時間が無くて
空港でお土産を
買って帰ります
先ずは、一つ目。
「万代太鼓」というお菓子

なんでしょーか、
細いバウムクーヘンの
中にクリームが入っている
洋菓子です!味は南紀白浜の銘菓「かげろう」に
似ています
今回初めて買いましたけど、
美味しかったです!
そして、いつも買うのが、

新潟名物の
「笹だんご」
なぜかいつも買います!

想像通り、笹で包まれた
草だんごです。
色んな製造メーカーさん
の商品が売っていますが、ドコのが一番美味しいの
でしょーか・・・ こしあん、つぶあんの2種類あります。

私はこしあん好きなので
こしあんを買ったつもりが・・・
食べてみると、つぶあん
なんでやねん
残念過ぎます
でも、つぶあんも美味しかったので、次の機会には
間違えないように気をつけたいと思います
↓ ランキング投票 ↓ になります。

にほんブログ村
どちらも、『ポチッ』と宜しくお願いします
(新潟出張⇒http://ytkimagure.blog.shinobi.jp/Entry/206/)
いつも時間が無くて
空港でお土産を
買って帰ります

先ずは、一つ目。
「万代太鼓」というお菓子

なんでしょーか、
細いバウムクーヘンの
中にクリームが入っている
洋菓子です!味は南紀白浜の銘菓「かげろう」に
似ています
今回初めて買いましたけど、美味しかったです!
そして、いつも買うのが、
新潟名物の
「笹だんご」
なぜかいつも買います!
想像通り、笹で包まれた
草だんごです。
色んな製造メーカーさん
の商品が売っていますが、ドコのが一番美味しいの
でしょーか・・・ こしあん、つぶあんの2種類あります。
私はこしあん好きなので
こしあんを買ったつもりが・・・
食べてみると、つぶあん

なんでやねん
残念過ぎます
でも、つぶあんも美味しかったので、次の機会には
間違えないように気をつけたいと思います

↓ ランキング投票 ↓ になります。
にほんブログ村
どちらも、『ポチッ』と宜しくお願いします

PR
相変わらず、年末の忙しさに追われながら
仕事をしております
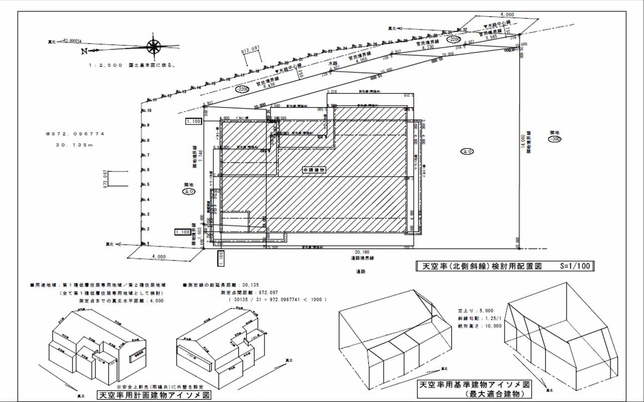
さて、久々に設計業務についてですが・・・
建築の計画の中にも法律で色々な規制があります
その中に、高さの制限というものもあり、
自治体の都市計画の中で地域別に制限が
設定されています。当然ながら、その制限の範囲内で
建物を計画しなければなりませんが、全てが
余裕のあるものとは限りませんので、
色々な「緩和措置」というものが定められています
現在計画中の建物の中で、ひとつ条件が厳しいものが
ありまして・・・
まぁ、屋根の形状を変えればクリアできる話なんですけど…
デザイン的に納得できなくて…
2階建の建物ではあまり使用する緩和措置ではないのですが、
ある緩和措置を利用してみました!初の試みです

「天空率」と言いまして、
ちょっと検討内容が
複雑で難しい緩和規定です・・・

一度、使ってみると
ホント合理的で有効な
規定なのですが、なかなか難しそうなので、
手を出さない人が多いようです。

と言いつつも、
私もその一人でしたが…
基本的には、CADで計算しますので、細かい入力さえ
間違わなければOKです
今回は、この「天空率」のおかげで、希望のデザインのまま
計画を進められそうです
ヨカッタ
さぁ、これから申請に向けてペースを上げていこうと思います!
少し下がり気味です
皆さんのご協力を~

にほんブログ村
↑ ↑
どちらも『ポチッ』と宜しくお願いします!
仕事をしております

さて、久々に設計業務についてですが・・・
建築の計画の中にも法律で色々な規制があります

その中に、高さの制限というものもあり、
自治体の都市計画の中で地域別に制限が
設定されています。当然ながら、その制限の範囲内で
建物を計画しなければなりませんが、全てが
余裕のあるものとは限りませんので、
色々な「緩和措置」というものが定められています

現在計画中の建物の中で、ひとつ条件が厳しいものが
ありまして・・・

まぁ、屋根の形状を変えればクリアできる話なんですけど…
デザイン的に納得できなくて…

2階建の建物ではあまり使用する緩和措置ではないのですが、
ある緩和措置を利用してみました!初の試みです

「天空率」と言いまして、
ちょっと検討内容が
複雑で難しい緩和規定です・・・
一度、使ってみると
ホント合理的で有効な
規定なのですが、なかなか難しそうなので、
手を出さない人が多いようです。
と言いつつも、
私もその一人でしたが…

基本的には、CADで計算しますので、細かい入力さえ
間違わなければOKです

今回は、この「天空率」のおかげで、希望のデザインのまま
計画を進められそうです
ヨカッタ
さぁ、これから申請に向けてペースを上げていこうと思います!
少し下がり気味です
皆さんのご協力を~
にほんブログ村
↑ ↑
どちらも『ポチッ』と宜しくお願いします!
最近すごく食べたかったので・・・
今日、久々にピザを頼みました!
我が家御用達の、ピザハット
ひとつの味じゃ、物足りないので・・・
いつものように、ハーフ&ハーフで
「テリヤキマヨチキン」と「シーフードミックス」
を頼みました!やっぱいつ食べても美味しい
そうそう!
忘れずにサラダも・・・
しかし最近、仕事の都合で夕食も遅いのに、
結構なジャンクフードですよね
その時は美味しいんだけど、明日「胃」にくるんですよね~
にほんブログ村
どちらも、『ポチッ』と宜しくお願いします

昨日は日帰りで新潟に出張でしたので、さすがに
疲れました
出張の理由は、私の勤務する会社が
新潟のある会社とパートナーシップ
の関係にあるのですが・・・
この度、その会社が「長期優良住宅」の認証を受けた
(長期優良住宅とは…
http://www.zenkensoren.org/chouki/jyutaku/jyutaku.html)
モデルハウスを完成したというので、見学させて
もらいに行ってきました

こちらが外観

木の質感と開放感
たっぷりの吹抜け…

無垢材にこだわった
家づくりをしている会社です。

ゼロエネルギー住宅も
唱っているので、当然の
薪ストーブ(熱交換付き)!
排熱を利用して、
床暖房やお風呂のお湯に利用もできます。
その他、雨水等も再利用する装置などもありました!

インナーテラス。
昔の民家を思わせる
縁側+納屋 的な
空間でしょうか・・・
私は結構、お気に入りでした。


2階の勾配天井とロフトの様子。
ホントに木の温かみが感じられる気持ちの良い
家でした。このあと、図面や仕様書、長期優良認証の
申請に使用した図書などを拝見し、ノウハウも
学ぶことができました
今後、本格的に需要がでてくると予想されるので、
今回、非常に参考になることが多くありました。
(写真だけでは、わかりませんが・・・
)
よーく、復習しておこうと思います!
↓ ランキング投票 ↓ になります。

にほんブログ村
どちらも、『ポチッ』と宜しくお願いします
疲れました

出張の理由は、私の勤務する会社が
新潟のある会社とパートナーシップ
の関係にあるのですが・・・
この度、その会社が「長期優良住宅」の認証を受けた
(長期優良住宅とは…
http://www.zenkensoren.org/chouki/jyutaku/jyutaku.html)
モデルハウスを完成したというので、見学させて
もらいに行ってきました

こちらが外観

木の質感と開放感
たっぷりの吹抜け…
無垢材にこだわった
家づくりをしている会社です。
ゼロエネルギー住宅も
唱っているので、当然の
薪ストーブ(熱交換付き)!
排熱を利用して、
床暖房やお風呂のお湯に利用もできます。
その他、雨水等も再利用する装置などもありました!
インナーテラス。
昔の民家を思わせる
縁側+納屋 的な
空間でしょうか・・・
私は結構、お気に入りでした。
2階の勾配天井とロフトの様子。
ホントに木の温かみが感じられる気持ちの良い
家でした。このあと、図面や仕様書、長期優良認証の
申請に使用した図書などを拝見し、ノウハウも
学ぶことができました

今後、本格的に需要がでてくると予想されるので、
今回、非常に参考になることが多くありました。
(写真だけでは、わかりませんが・・・
)よーく、復習しておこうと思います!
↓ ランキング投票 ↓ になります。
にほんブログ村
どちらも、『ポチッ』と宜しくお願いします

雨天の中、今日は新潟に
早朝から出張に来ておりました…
移動が多くて、結構疲れちゃいました(>_<)
先程、空港到着し、これから飛行機に
乗り込むところです(^_^;)

↓ ランキング投票 ↓ になります。

にほんブログ村
どちらも、『ポチッ』と宜しくお願いします
早朝から出張に来ておりました…
移動が多くて、結構疲れちゃいました(>_<)
先程、空港到着し、これから飛行機に
乗り込むところです(^_^;)
↓ ランキング投票 ↓ になります。
にほんブログ村
どちらも、『ポチッ』と宜しくお願いします

またまた、年末の話でスミマセン
もうひとつ恒例…がありましたので、
購入してきました!

ご存知
「紀伊國屋書店
」

中身は、
システム手帳の替えです!
いつも使っているのが、やはり使いやすいので
毎年同じ書式を使っています
いつも思うのですが…
このスケジュール帳、12月から翌々年の3月まで入っている
ので、いつも1~3月が重複してしまい、使わないので
もったいない気がします
それと今年は、もうひとつ購入しました!(写真右)
方眼になったメモ帳です
仕事で思いついたものや気になったイメージをスケッチ
しておくのに使おうと思います!
着々と来年の準備をしていますが…
肝心の仕事を年内にまとめなければ
(苦笑)
↓ ランキング投票 ↓ になります。

にほんブログ村
どちらも、『ポチッ』と宜しくお願いします

もうひとつ恒例…がありましたので、
購入してきました!
ご存知

「紀伊國屋書店
」中身は、
システム手帳の替えです!
いつも使っているのが、やはり使いやすいので
毎年同じ書式を使っています

いつも思うのですが…
このスケジュール帳、12月から翌々年の3月まで入っている
ので、いつも1~3月が重複してしまい、使わないので
もったいない気がします

それと今年は、もうひとつ購入しました!(写真右)
方眼になったメモ帳です

仕事で思いついたものや気になったイメージをスケッチ
しておくのに使おうと思います!
着々と来年の準備をしていますが…
肝心の仕事を年内にまとめなければ
(苦笑)↓ ランキング投票 ↓ になります。
にほんブログ村
どちらも、『ポチッ』と宜しくお願いします

今日は、休日だったので午後から久しぶりのお出かけ

ホント久しぶりに、「りんくうプレミアムアウトレット」
(⇒http://www.premiumoutlets.co.jp/rinku/)
に行って来ました
約2年ぶりぐらいでしょーか
と言っても、今回はあまり目的は無く…
探してあればコートでも欲しいかな??程度でした
少し出展ブランドも変わっていて、
よく行っていた店も閉店になっていたのは残念でした
それでも、たまたまある店でコートにも巡り会い、
すんなりと目的も達成しちゃいました
でも実は、もうひとつ目的がありました!

それが、こちらの
「GODIVA」
ちょっとテンション

以前飲んで紹介したチョコドリンクを飲みたいなぁ~と
(以前の記事⇒http://ytkimagure.blog.shinobi.jp/Entry/140/)
考えてたんです!

でも、今日はちょっと寒かったので
ホットドリンクとひとつずつ…
左がアイスの「ホワイトチョコレート抹茶」、
右はホットで「キャラメルシナモンマシュマロ」
やはりどちらも、期待以上に美味しかったです~

名前の通り、マシュマロが
沢山入っていて、溶けながら
口の中でまろやかに
めっちゃ甘いのに、後味はスッキリなんです!
やっぱ、GODIVAのドリンクは、今のイチ押しですね
↓ ランキング投票 ↓ になります。

にほんブログ村
どちらも、『ポチッ』と宜しくお願いします


ホント久しぶりに、「りんくうプレミアムアウトレット」
(⇒http://www.premiumoutlets.co.jp/rinku/)
に行って来ました

約2年ぶりぐらいでしょーか

と言っても、今回はあまり目的は無く…
探してあればコートでも欲しいかな??程度でした

少し出展ブランドも変わっていて、
よく行っていた店も閉店になっていたのは残念でした

それでも、たまたまある店でコートにも巡り会い、
すんなりと目的も達成しちゃいました

でも実は、もうひとつ目的がありました!
それが、こちらの
「GODIVA」
ちょっとテンション


以前飲んで紹介したチョコドリンクを飲みたいなぁ~と
(以前の記事⇒http://ytkimagure.blog.shinobi.jp/Entry/140/)
考えてたんです!
でも、今日はちょっと寒かったので
ホットドリンクとひとつずつ…
左がアイスの「ホワイトチョコレート抹茶」、
右はホットで「キャラメルシナモンマシュマロ」
やはりどちらも、期待以上に美味しかったです~

名前の通り、マシュマロが
沢山入っていて、溶けながら
口の中でまろやかに

めっちゃ甘いのに、後味はスッキリなんです!
やっぱ、GODIVAのドリンクは、今のイチ押しですね

↓ ランキング投票 ↓ になります。
にほんブログ村
どちらも、『ポチッ』と宜しくお願いします

この季節になると、ぼちぼち年賀状
の準備に
忙しくなりますね
昨年は喪中だったので、それ程内容を考えることも
なく過ぎたような気がしますが…
今年は例年のとおり、年賀状を作成する予定です。。
近年は、友人あたりにはケータイメール
で
新年の挨拶を済ませる人も多いようですが…
やはり、仕事関係の人に対しては、通常NGなので
ちゃんとハガキを作ろうと思います!
って言うか、皆さんは一体いつ頃から年賀状を
作り始めるんでしょうか???
私はようやく明日から作ろうと思いますが・・・
早めに出さないと、元旦に到着しませんもんねぇ~
↓ ランキング投票 ↓ になります。

にほんブログ村
どちらも、『ポチッ』と宜しくお願いします
の準備に忙しくなりますね

昨年は喪中だったので、それ程内容を考えることも
なく過ぎたような気がしますが…
今年は例年のとおり、年賀状を作成する予定です。。
近年は、友人あたりにはケータイメール
で新年の挨拶を済ませる人も多いようですが…
やはり、仕事関係の人に対しては、通常NGなので

ちゃんとハガキを作ろうと思います!
って言うか、皆さんは一体いつ頃から年賀状を
作り始めるんでしょうか???
私はようやく明日から作ろうと思いますが・・・

早めに出さないと、元旦に到着しませんもんねぇ~
↓ ランキング投票 ↓ になります。
にほんブログ村
どちらも、『ポチッ』と宜しくお願いします

随分とご無沙汰でしたが・・・
前回から、着々と図面作りを進めてきました
「堺市の家」ですが、ようやく出口が見えてきました!
(前回の記事⇒http://ytkimagure.blog.shinobi.jp/Entry/179/)
それと同時にお施主様との全体のイメージ確認の為に
模型の制作も進めてきました
こちらも、なんとか完成しましたので少しだけ見て下さい・・・

角地に建つ家なので、
このアングルが
一番よく見える角度です!

一応、裏側も・・・

いつもの通り、
内部もイメージしやすい
ように、細かく作りました。

←初期のイメージ
からは、少し変わりましたが、
ほとんどの提案は採用して頂きました
確認申請も下りたし・・・
今後は工事に向けて、最終確認です
楽しみです~
↓ ランキング投票 ↓ になります。

にほんブログ村
どちらも、『ポチッ』と宜しくお願いします
前回から、着々と図面作りを進めてきました

「堺市の家」ですが、ようやく出口が見えてきました!
(前回の記事⇒http://ytkimagure.blog.shinobi.jp/Entry/179/)
それと同時にお施主様との全体のイメージ確認の為に
模型の制作も進めてきました

こちらも、なんとか完成しましたので少しだけ見て下さい・・・
角地に建つ家なので、
このアングルが
一番よく見える角度です!
一応、裏側も・・・
いつもの通り、
内部もイメージしやすい
ように、細かく作りました。
←初期のイメージ
からは、少し変わりましたが、
ほとんどの提案は採用して頂きました

確認申請も下りたし・・・
今後は工事に向けて、最終確認です

楽しみです~

↓ ランキング投票 ↓ になります。
にほんブログ村
どちらも、『ポチッ』と宜しくお願いします

こんな時間に・・・
またヤッちゃいました

毎度、お馴染みの「ケーニヒス・クローネ」
のパフェ類
そりゃ、太るぜ
でも、美味しかったです
また走って
チャラにしましょ
皆さんも、深夜のスイーツは注意しましょう
↓ ランキング投票 ↓ になります。

にほんブログ村
どちらも、『ポチッ』と宜しくお願いします
またヤッちゃいました

毎度、お馴染みの「ケーニヒス・クローネ」
のパフェ類

そりゃ、太るぜ

でも、美味しかったです

また走って
チャラにしましょ
皆さんも、深夜のスイーツは注意しましょう

↓ ランキング投票 ↓ になります。
にほんブログ村
どちらも、『ポチッ』と宜しくお願いします

カレンダー
| 12 | 2026/01 | 02 |
| S | M | T | W | T | F | S |
|---|---|---|---|---|---|---|
| 1 | 2 | 3 | ||||
| 4 | 5 | 6 | 7 | 8 | 9 | 10 |
| 11 | 12 | 13 | 14 | 15 | 16 | 17 |
| 18 | 19 | 20 | 21 | 22 | 23 | 24 |
| 25 | 26 | 27 | 28 | 29 | 30 | 31 |
カウンター
プロフィール
HN:
TaKe 嶽下 康弘(タケシタ ヤスヒロ)
年齢:
47
HP:
性別:
男性
誕生日:
1978/07/05
職業:
一級建築士
趣味:
グルメ、ジョギング、ファッション、お笑い、パソコン、ギター、イタリア等
自己紹介:
大阪・堺市の建築事務所
『Studio REI』 の代表です。
ブログは気まぐれですが、
気楽に続けようと思います。
コメントやリンクも
お待ちしております(^_^)v
『Studio REI』 の代表です。
ブログは気まぐれですが、
気楽に続けようと思います。
コメントやリンクも
お待ちしております(^_^)v
最新コメント
[03/27 KennethBof]
[04/28 Take]
[03/14 かな]
[04/07 Take]
[04/07 HAL]
[03/13 Take]
[03/11 haru]
[10/04 Take]
[10/03 HAL]
[07/02 Take]
[06/30 かな]
[02/05 Take]
[02/04 きままなマーシャ]
[02/01 Take]
[02/01 Take]
カテゴリー
お気に入り Blog リンク
リンク
石田歯科医院・大阪府和泉市
S design 一級建築士事務所
オオハタミツオ建築設計事務所
不動産買取専門店 ユニバーサル
(一社)和歌山県建築士会
アーキテクツ・スタジオ・ジャパン㈱
建築家紹介センター
建物を建てたい方にお近くの建築家を紹介
店舗設計紹介サービス
店舗を新築・改装したい方に店舗設計事務所・デザイナーを紹介
最新記事
(11/17)
(10/31)
(10/02)
(09/30)
(09/25)
アーカイブ
ブログ内検索
アクセス解析





