『 REI 』の気まぐれ日記
建築事務所『Studio REI』の代表“TaKe”が携わる仕事や日常の生活を気まぐれに書き綴った日記です。
×
[PR]上記の広告は3ヶ月以上新規記事投稿のないブログに表示されています。新しい記事を書く事で広告が消えます。
今日は、平成22年2月22日!
で、『2』が5つも並ぶゾロ目の記念日
駅などでは、記念切符を求めて人が行列を
作っていたらしいですよ~
2月2日にも、似たような記事を書きましたが・・・
(http://ytkimagure.blog.shinobi.jp/Entry/250/)
前回は、それ程人も集まらなかった理由は、
今日があるからだったんですねぇ
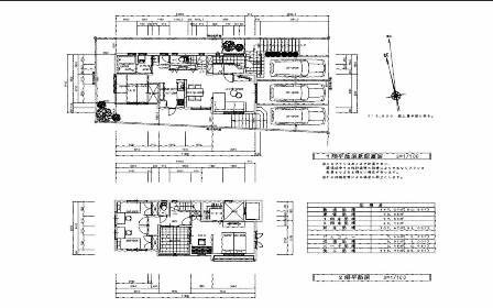
さてさて、本日も現場確認に行ってきました
「堺市の家」
(前回⇒http://ytkimagure.blog.shinobi.jp/Entry/259/)

まだ少し工事中ですが、
ほぼ完成という頃なので
このタイミングで早めの
完了検査を受けました

一応、美装工事前ですが、
床の仕上げもわかるので。
検査項目は当然全てクリア
しました!

本当の完成まで、もう少し。
あとは、諸々雑工事と
外構工事を残すくらい
でしょうか・・・
お楽しみの車庫も、もう少しで公開です!
いつも有難うございます~

にほんブログ村
↑ ↑
どちらも『ポチッ』と宜しくお願いします!
で、『2』が5つも並ぶゾロ目の記念日

駅などでは、記念切符を求めて人が行列を
作っていたらしいですよ~

2月2日にも、似たような記事を書きましたが・・・
(http://ytkimagure.blog.shinobi.jp/Entry/250/)
前回は、それ程人も集まらなかった理由は、
今日があるからだったんですねぇ

さてさて、本日も現場確認に行ってきました

「堺市の家」
(前回⇒http://ytkimagure.blog.shinobi.jp/Entry/259/)
まだ少し工事中ですが、
ほぼ完成という頃なので
このタイミングで早めの
完了検査を受けました

一応、美装工事前ですが、
床の仕上げもわかるので。
検査項目は当然全てクリア
しました!
本当の完成まで、もう少し。
あとは、諸々雑工事と
外構工事を残すくらい
でしょうか・・・

お楽しみの車庫も、もう少しで公開です!
いつも有難うございます~

にほんブログ村
↑ ↑
どちらも『ポチッ』と宜しくお願いします!
PR
昨夜、建築士仲間と恒例の飲み会
に・・・

今回は、和歌山市にある
「ねりちゃぎ」というお店
(http://r.gnavi.co.jp/k705601/)

お店の中もこんな感じ。
ホント、大衆居酒屋的な
雰囲気です!
実は今回の恒例「友の会」は新年会を兼ねてます。
(もう2月も下旬なので、新年会??って感じですが・・・)
んで、約束の時間は19:00スタートだったのですが、
仕事で予想以上に時間がかかり、30分以上遅れての
参加になりました
到着すると・・・

お鍋は既に、
この状態・・・
イイ感じにお酒も
すすんでいる様子でした

ちなみにメンバーには
大手ハウスメーカーの
こんな人も居ます
そんなこんなで、とりあえず残った料理を頂きました
(ガッついて、よく冷えた生ビールを撮り忘れ
)

お通しとモツ鍋の残りに、
漬物でしょーか・・・
これはこれで美味い。

続いて、串カツ盛合わせ!
当然の事ながら・・・

ソース二度付け厳禁!
関西の人なら、このルール
よく知ってますよね~

んで、海鮮チヂミも
注文してもらいました!
少し焦げた感じが
美味しかったです。

それから、鍋をまともに
食べていない私の為に
皆さんが新たに付き合って
くれました! 「トリと豚肉のチゲ鍋」
少しピリっと辛味があって食欲増しました!

後半は、チューハイの
「そのまま」を連杯。
甘過ぎず、美味しいです!

最後は、お馴染み
中華そばで〆ました。
コシがある太麺でたっぷり
美味しく頂きました
今回もメンバーの近況や仕事の様子を色々と
伺う事が出来ました
次回はまた3ヶ月後・・・
幹事を順番で受け持つシステムなのですが、
次回は私の当番なので、スケジュール調整と
お店選びが大変です
少し下がり気味です
皆さんのご協力を~

にほんブログ村
↑ ↑
どちらも『ポチッ』と宜しくお願いします!
に・・・
今回は、和歌山市にある
「ねりちゃぎ」というお店

(http://r.gnavi.co.jp/k705601/)
お店の中もこんな感じ。
ホント、大衆居酒屋的な
雰囲気です!
実は今回の恒例「友の会」は新年会を兼ねてます。
(もう2月も下旬なので、新年会??って感じですが・・・)
んで、約束の時間は19:00スタートだったのですが、
仕事で予想以上に時間がかかり、30分以上遅れての
参加になりました

到着すると・・・
お鍋は既に、
この状態・・・

イイ感じにお酒も
すすんでいる様子でした

ちなみにメンバーには
大手ハウスメーカーの
こんな人も居ます

そんなこんなで、とりあえず残った料理を頂きました

(ガッついて、よく冷えた生ビールを撮り忘れ
)お通しとモツ鍋の残りに、
漬物でしょーか・・・
これはこれで美味い。
続いて、串カツ盛合わせ!
当然の事ながら・・・
ソース二度付け厳禁!
関西の人なら、このルール
よく知ってますよね~

んで、海鮮チヂミも
注文してもらいました!
少し焦げた感じが
美味しかったです。
それから、鍋をまともに
食べていない私の為に
皆さんが新たに付き合って
くれました! 「トリと豚肉のチゲ鍋」
少しピリっと辛味があって食欲増しました!
後半は、チューハイの
「そのまま」を連杯。
甘過ぎず、美味しいです!
最後は、お馴染み
中華そばで〆ました。
コシがある太麺でたっぷり
美味しく頂きました

今回もメンバーの近況や仕事の様子を色々と
伺う事が出来ました
次回はまた3ヶ月後・・・幹事を順番で受け持つシステムなのですが、
次回は私の当番なので、スケジュール調整と
お店選びが大変です

少し下がり気味です
皆さんのご協力を~
にほんブログ村
↑ ↑
どちらも『ポチッ』と宜しくお願いします!
今日は、建築士仲間との飲み会に
やってきました!
四半期に一回程度のペースで開催していますが、
今日は一応今年の新年会のつもりです!
久々に情報交換中です(^_^;)


にほんブログ村
↑ ↑
どちらも『ポチッ』と宜しくお願いします!
やってきました!
四半期に一回程度のペースで開催していますが、
今日は一応今年の新年会のつもりです!
久々に情報交換中です(^_^;)
にほんブログ村
↑ ↑
どちらも『ポチッ』と宜しくお願いします!
いつも、このつたないBlogに訪問&コメント&あしあと
を残して下さる皆様、大変有難うございます!
昨夜から、『忍者Blog』がサーバーメンテナンスの為、
折角遊びに来て下さったのに、Blogのページに
繋がらない状態が続いていました
(おかげで、昨夜UP出来ず・・・
)
予定では、今朝7:00までに完了するはずが・・・
11:00に延長され・・・
挙句の果てに、終了未定に
夕方になり、ようやく復旧できました
その間に遊びに来て下さった皆様には大変失礼致しました。
今後共、宜しくお願い致します
いつもホントに有難うございます~

にほんブログ村
↑ ↑
どちらも『ポチッ』と宜しくお願いします!
を残して下さる皆様、大変有難うございます!
昨夜から、『忍者Blog』がサーバーメンテナンスの為、
折角遊びに来て下さったのに、Blogのページに
繋がらない状態が続いていました

(おかげで、昨夜UP出来ず・・・
)予定では、今朝7:00までに完了するはずが・・・
11:00に延長され・・・
挙句の果てに、終了未定に

夕方になり、ようやく復旧できました

その間に遊びに来て下さった皆様には大変失礼致しました。
今後共、宜しくお願い致します

いつもホントに有難うございます~

にほんブログ村
↑ ↑
どちらも『ポチッ』と宜しくお願いします!
昨日の記事になりますが・・・
現場確認に行ってきました
先日、上棟式を済ませた現場です!
(前回の記事⇒http://ytkimagure.blog.shinobi.jp/Entry/260/)
構造材全てに紀州材(和歌山の木)を使用した家。

1階の屋根下地も出来て、
ルーフィング(防水)まで
施工されていました。
これから、この上に瓦を葺いていきます

2階の天井も同時に
仕上がりです!
屋根の裏面が化粧板
になっているので、
はじめから、天井が出来ている状態なんです。
もう少し工事が進むとイメージできますかね
一応、上棟式のレポートがモバイルだったので…

上棟時の様子です。
クレーンで材料を
吊り上げてます。

今回も、大きな丸太の柱を
リビングに配置しました!
かなり見ごたえありそうです
では、次回をお楽しみに!!
いつも有難うございます~

にほんブログ村
↑ ↑
どちらも『ポチッ』と宜しくお願いします!

現場確認に行ってきました

先日、上棟式を済ませた現場です!
(前回の記事⇒http://ytkimagure.blog.shinobi.jp/Entry/260/)
構造材全てに紀州材(和歌山の木)を使用した家。
1階の屋根下地も出来て、
ルーフィング(防水)まで
施工されていました。
これから、この上に瓦を葺いていきます

2階の天井も同時に
仕上がりです!
屋根の裏面が化粧板
になっているので、
はじめから、天井が出来ている状態なんです。
もう少し工事が進むとイメージできますかね

一応、上棟式のレポートがモバイルだったので…
上棟時の様子です。
クレーンで材料を
吊り上げてます。
今回も、大きな丸太の柱を
リビングに配置しました!
かなり見ごたえありそうです

では、次回をお楽しみに!!
いつも有難うございます~

にほんブログ村
↑ ↑
どちらも『ポチッ』と宜しくお願いします!
寒い冬でも・・・
お風呂で温まると・・・
ついつい食べてしまいます

冷たくって美味しい
アイスクリーム
今夜は、ハーゲンダッツ
のクリスピーサンドで「練乳いちご」
なんでも、アンコール商品だそうです!
人気あったんでしょーね
僕も発売時から好きでしたけど

この外がパリッとしてて
アイス部はチョコで
コーティングされてて、
濃厚な練乳いちごが詰まっていまして・・・
そりゃー美味しいに決まってますね
なんだか、夜のデザートが癖になってますね~
↓ ランキング投票 ↓ になります。

にほんブログ村
どちらも、『ポチッ』と宜しくお願いします
お風呂で温まると・・・
ついつい食べてしまいます

冷たくって美味しい

アイスクリーム

今夜は、ハーゲンダッツ
のクリスピーサンドで「練乳いちご」

なんでも、アンコール商品だそうです!
人気あったんでしょーね

僕も発売時から好きでしたけど

この外がパリッとしてて
アイス部はチョコで
コーティングされてて、
濃厚な練乳いちごが詰まっていまして・・・
そりゃー美味しいに決まってますね

なんだか、夜のデザートが癖になってますね~

↓ ランキング投票 ↓ になります。
にほんブログ村
どちらも、『ポチッ』と宜しくお願いします

本日は、休日でしたが・・・
大事な講習がありまして・・・
朝から夕方まで、ミッチリ勉強してきました。。

「管理建築士講習」
姉歯事件に端を発した
構造計算偽装事件以降、
「建築基準法」や「建築士法」など、建築をとりまく
法律がめまぐるしく改正されてきました。
その中で建築士事務所を管理する専任の建築士
には新たに講習と考査による資格要件が義務付け
されました… という事で、本日の講習でした
一部の建築士のモラル低下や欧米に近づく
訴訟社会の中で、社会の中の建築士の役割や
責任は厳しくなるばかりです
だからこそ、もう一度その重要な責任を見つめ直し、
人や社会に安全で安心な建築を提供するため
私達プロが気を引き締める必要があるのだと思います!
一日の講習で疲れたけど、改めてそんな事を
考えていました
少し下がり気味です
皆さんのご協力を~

にほんブログ村
↑ ↑
どちらも『ポチッ』と宜しくお願いします!
大事な講習がありまして・・・
朝から夕方まで、ミッチリ勉強してきました。。
「管理建築士講習」
姉歯事件に端を発した
構造計算偽装事件以降、
「建築基準法」や「建築士法」など、建築をとりまく
法律がめまぐるしく改正されてきました。
その中で建築士事務所を管理する専任の建築士
には新たに講習と考査による資格要件が義務付け
されました… という事で、本日の講習でした

一部の建築士のモラル低下や欧米に近づく
訴訟社会の中で、社会の中の建築士の役割や
責任は厳しくなるばかりです

だからこそ、もう一度その重要な責任を見つめ直し、
人や社会に安全で安心な建築を提供するため
私達プロが気を引き締める必要があるのだと思います!
一日の講習で疲れたけど、改めてそんな事を
考えていました

少し下がり気味です
皆さんのご協力を~
にほんブログ村
↑ ↑
どちらも『ポチッ』と宜しくお願いします!
先日、敷地調査をしてきた物件ですが・・・
(前回の記事⇒http://ytkimagure.blog.shinobi.jp/Entry/257/)
本日は、プランを作成していました

大きな高低差がある
敷地なのと、
法規制が厳しい敷地
なので、結構大変でしたが・・・
なんとか納得のできるモノになりました!
このあと、続けてプレゼン作りです
頑張って、今回も良い提案をしたいと思います!
少し下がり気味です
皆さんのご協力を~

にほんブログ村
↑ ↑
どちらも『ポチッ』と宜しくお願いします!
(前回の記事⇒http://ytkimagure.blog.shinobi.jp/Entry/257/)
本日は、プランを作成していました

大きな高低差がある
敷地なのと、
法規制が厳しい敷地
なので、結構大変でしたが・・・
なんとか納得のできるモノになりました!
このあと、続けてプレゼン作りです

頑張って、今回も良い提案をしたいと思います!
少し下がり気味です
皆さんのご協力を~
にほんブログ村
↑ ↑
どちらも『ポチッ』と宜しくお願いします!
今日は2月14日
バレンタインデー
毎年、チョコレートが一番食べられる日とでも
言いましょうか・・・
毎年この日はチョコレートを頂いておりまして・・・

今年は、こんな感じで
4つも頂きました!
こんな僕に・・・
感謝。感謝。です
右から妻、会社の同僚(真ん中)、
会社の同僚(左)、妻の母(上)・・・と
沢山頂きました!たとえ義理でも義務でも・・・
プレゼントって嬉しいものですよね~

王道の「GODIVA」や、

バームクーヘンが有名な
「クラブハリエ」も!

手作りの焼き菓子まで!
ホント嬉しいですね~
全部開けても、今日は食べられないので
ちょっとずつ食べようと思います
ちなみに、「クラブハリエ」のは、ホワイト生チョコ
だそうです!超美味しそう
しかし・・・毎年のことながら、来月はお返しです
相当、奮発しないといけませんねぇ
少し下がり気味です
皆さんのご協力を~

にほんブログ村
↑ ↑
どちらも『ポチッ』と宜しくお願いします!
バレンタインデー
毎年、チョコレートが一番食べられる日とでも
言いましょうか・・・

毎年この日はチョコレートを頂いておりまして・・・

今年は、こんな感じで
4つも頂きました!
こんな僕に・・・
感謝。感謝。です

右から妻、会社の同僚(真ん中)、
会社の同僚(左)、妻の母(上)・・・と
沢山頂きました!たとえ義理でも義務でも・・・
プレゼントって嬉しいものですよね~

王道の「GODIVA」や、
バームクーヘンが有名な
「クラブハリエ」も!
手作りの焼き菓子まで!
ホント嬉しいですね~
全部開けても、今日は食べられないので
ちょっとずつ食べようと思います

ちなみに、「クラブハリエ」のは、ホワイト生チョコ
だそうです!超美味しそう

しかし・・・毎年のことながら、来月はお返しです

相当、奮発しないといけませんねぇ

少し下がり気味です
皆さんのご協力を~
にほんブログ村
↑ ↑
どちらも『ポチッ』と宜しくお願いします!
本日は天気にも恵まれ、
上棟式日和!(^-^)
現在、大工さんが黙々と作業中…
今回の家は、構造木材全てに
和歌山の木を使用した紀州材の家。
見応えありますよ!
(前回の記事⇒http://ytkimagure.blog.shinobi.jp/Entry/250/)
※既に着工してて、基礎工事レポートを飛ばしましたが
いつも有難うございます~

にほんブログ村
↑ ↑
どちらも『ポチッ』と宜しくお願いします!
上棟式日和!(^-^)
現在、大工さんが黙々と作業中…
今回の家は、構造木材全てに
和歌山の木を使用した紀州材の家。
見応えありますよ!
(前回の記事⇒http://ytkimagure.blog.shinobi.jp/Entry/250/)
※既に着工してて、基礎工事レポートを飛ばしましたが

いつも有難うございます~

にほんブログ村
↑ ↑
どちらも『ポチッ』と宜しくお願いします!
カレンダー
| 12 | 2026/01 | 02 |
| S | M | T | W | T | F | S |
|---|---|---|---|---|---|---|
| 1 | 2 | 3 | ||||
| 4 | 5 | 6 | 7 | 8 | 9 | 10 |
| 11 | 12 | 13 | 14 | 15 | 16 | 17 |
| 18 | 19 | 20 | 21 | 22 | 23 | 24 |
| 25 | 26 | 27 | 28 | 29 | 30 | 31 |
カウンター
プロフィール
HN:
TaKe 嶽下 康弘(タケシタ ヤスヒロ)
年齢:
47
HP:
性別:
男性
誕生日:
1978/07/05
職業:
一級建築士
趣味:
グルメ、ジョギング、ファッション、お笑い、パソコン、ギター、イタリア等
自己紹介:
大阪・堺市の建築事務所
『Studio REI』 の代表です。
ブログは気まぐれですが、
気楽に続けようと思います。
コメントやリンクも
お待ちしております(^_^)v
『Studio REI』 の代表です。
ブログは気まぐれですが、
気楽に続けようと思います。
コメントやリンクも
お待ちしております(^_^)v
最新コメント
[03/27 KennethBof]
[04/28 Take]
[03/14 かな]
[04/07 Take]
[04/07 HAL]
[03/13 Take]
[03/11 haru]
[10/04 Take]
[10/03 HAL]
[07/02 Take]
[06/30 かな]
[02/05 Take]
[02/04 きままなマーシャ]
[02/01 Take]
[02/01 Take]
カテゴリー
お気に入り Blog リンク
リンク
石田歯科医院・大阪府和泉市
S design 一級建築士事務所
オオハタミツオ建築設計事務所
不動産買取専門店 ユニバーサル
(一社)和歌山県建築士会
アーキテクツ・スタジオ・ジャパン㈱
建築家紹介センター
建物を建てたい方にお近くの建築家を紹介
店舗設計紹介サービス
店舗を新築・改装したい方に店舗設計事務所・デザイナーを紹介
最新記事
(11/17)
(10/31)
(10/02)
(09/30)
(09/25)
アーカイブ
ブログ内検索
アクセス解析





