『 REI 』の気まぐれ日記
建築事務所『Studio REI』の代表“TaKe”が携わる仕事や日常の生活を気まぐれに書き綴った日記です。
×
[PR]上記の広告は3ヶ月以上新規記事投稿のないブログに表示されています。新しい記事を書く事で広告が消えます。
早いものですが、今日で5月も最終日ですね
月末で、何かと忙しい人も多い事でしょーね
(僕の場合、なんだかずーっとですけど
)
そんな月末の今日、会議で和歌山に戻ったので、
久々に食べたいものがありました
ずっと前に紹介しました
和歌山の有名店。
「とんちゃん」
(以前の記事⇒http://ytkimagure.blog.shinobi.jp/Entry/39/)
いつ来ても、大繁盛で美味しいお店♪
最近では、お昼11:00~15:00までの
営業時間4時間だけしかOPENしていないので、
タイミングが大事です!
今日は、テーブル合席でしたが、すぐに座れました
注文はもちろん、
定番の「へれかつライス」
ジューシーで超柔らかい
へれかつが3枚に炊きたてライス。。たまりません
オリジナルソースが絶品!
当然ながら、美味しかったです
お腹一杯
次は、いつ来れるかな・・・
↓ ランキング投票 ↓ になります。

にほんブログ村
どちらも、『ポチッ』と宜しくお願いします

月末で、何かと忙しい人も多い事でしょーね

(僕の場合、なんだかずーっとですけど
)そんな月末の今日、会議で和歌山に戻ったので、
久々に食べたいものがありました

和歌山の有名店。
「とんちゃん」
(以前の記事⇒http://ytkimagure.blog.shinobi.jp/Entry/39/)
いつ来ても、大繁盛で美味しいお店♪
最近では、お昼11:00~15:00までの
営業時間4時間だけしかOPENしていないので、
タイミングが大事です!
今日は、テーブル合席でしたが、すぐに座れました

定番の「へれかつライス」
ジューシーで超柔らかい
へれかつが3枚に炊きたてライス。。たまりません

オリジナルソースが絶品!
当然ながら、美味しかったです
お腹一杯
次は、いつ来れるかな・・・
↓ ランキング投票 ↓ になります。
にほんブログ村
どちらも、『ポチッ』と宜しくお願いします

PR
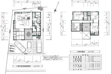
先日から打合せを進めていました、「友人宅」の
新築計画の進捗を少し・・・
2階に一部変更希望を
伺っていたので、
変更案を検討していました
なんとか、面積も増やすことなく、綺麗にまとまりました
本日、ご提案をしプラン的には大筋の合意を頂きました。
これから、立体的なイメージも含め模型でも制作しようか
と思います
平面図だけではイメージ難しいですからね
同時に外観の
イメージについても
方針を固めていきたいと
思いますが・・・
いつもの事ながら、これがなかなか難しいです
でもまぁ、友人宅ですから、「あーでもないこーでもない」
なんて言いながら、楽しく決めていければ・・・と思います
↓ ランキング投票 ↓ になります。

にほんブログ村
どちらも、『ポチッ』と宜しくお願いします
新築計画の進捗を少し・・・

伺っていたので、
変更案を検討していました

なんとか、面積も増やすことなく、綺麗にまとまりました

本日、ご提案をしプラン的には大筋の合意を頂きました。
これから、立体的なイメージも含め模型でも制作しようか
と思います
平面図だけではイメージ難しいですからね
イメージについても
方針を固めていきたいと
思いますが・・・
いつもの事ながら、これがなかなか難しいです

でもまぁ、友人宅ですから、「あーでもないこーでもない」
なんて言いながら、楽しく決めていければ・・・と思います

↓ ランキング投票 ↓ になります。
にほんブログ村
どちらも、『ポチッ』と宜しくお願いします

先日購入したパソコン
・・・
実は初期設定をしている時に、不具合に気付き、
メーカーへTELしてみたんです
・・・というのも、キーボードの幾つかのキーをたたくと
全く関係の無い文字が入力されるんです
はじめは、設定の問題かと思って色々試してみたのですが
全然変わらず
挙句、サポートセンターへTELしてみて
症状を伝えると、「内部の不具合の可能性が高い」との事
部品の郵送とエンジニアを派遣します・・・だって

それで、今朝届いた
荷物。中には
幾つかの部品が・・・
夕方、エンジニアが来てPCを分解。かなり分解。。
4時間格闘しましたが、原因解らず。
更に交換用に送ってきた部品にまで不具合
月曜日以降にメーカーから再度TEL来る予定
ありえへん
全然使ってないのに・・・
丸ごと交換して欲しいです


↓ ランキング投票 ↓ になります。

にほんブログ村
どちらも、『ポチッ』と宜しくお願いします
・・・実は初期設定をしている時に、不具合に気付き、
メーカーへTELしてみたんです

・・・というのも、キーボードの幾つかのキーをたたくと
全く関係の無い文字が入力されるんです

はじめは、設定の問題かと思って色々試してみたのですが
全然変わらず
挙句、サポートセンターへTELしてみて症状を伝えると、「内部の不具合の可能性が高い」との事

部品の郵送とエンジニアを派遣します・・・だって

それで、今朝届いた
荷物。中には
幾つかの部品が・・・
夕方、エンジニアが来てPCを分解。かなり分解。。
4時間格闘しましたが、原因解らず。
更に交換用に送ってきた部品にまで不具合

月曜日以降にメーカーから再度TEL来る予定

ありえへん
全然使ってないのに・・・丸ごと交換して欲しいです



↓ ランキング投票 ↓ になります。
にほんブログ村
どちらも、『ポチッ』と宜しくお願いします

昨日の出来事。
妻と大阪ミナミへ買い物に出かけました
ひととおり欲しいモノは購入できたところで、
少し喉が乾いてきたので・・・
少し休憩を
久々に南海・難波駅にある、「GODIVA」へ

「ミルクチョコレート
キャラメルデカダンス」と

「ホワイトチョコレート
抹茶」を注文
ちょっと寒かったのですが、
GODIVAのチョコをふんだんに使ったドリンクは、
飲むと言うか、食べると言うか・・・不思議なドリンクです!
いやぁ~、いつ飲んでも、美味しくて満足でしたよ~
P.S. 最近、建築ネタより食べ物多いですよね(苦笑)
いつも応援を有難うございます~

にほんブログ村
↑ ↑
どちらも『ポチッ』と宜しくお願いします!
妻と大阪ミナミへ買い物に出かけました

ひととおり欲しいモノは購入できたところで、
少し喉が乾いてきたので・・・
少し休憩を

久々に南海・難波駅にある、「GODIVA」へ

「ミルクチョコレート
キャラメルデカダンス」と
「ホワイトチョコレート
抹茶」を注文

ちょっと寒かったのですが、
GODIVAのチョコをふんだんに使ったドリンクは、
飲むと言うか、食べると言うか・・・不思議なドリンクです!
いやぁ~、いつ飲んでも、美味しくて満足でしたよ~

P.S. 最近、建築ネタより食べ物多いですよね(苦笑)
いつも応援を有難うございます~

にほんブログ村
↑ ↑
どちらも『ポチッ』と宜しくお願いします!
ある友人から、住宅建築の相談がありまして・・・
随分以前から、少しずつですが話を進めてきました
とは言え、土地が無いところからスタートなので、
先ずは土地探しから進めていこうという事で
早速いくつか見に行く事に・・・



雨の中、他にもいくつか見て回りました

予算も当然ありますが、先ずは住む場所って
生活する上で、非常に重要ですからね
じっくり検討してもらいたいと思います
↓ ランキング投票 ↓ になります。

にほんブログ村
どちらも、『ポチッ』と宜しくお願いします
随分以前から、少しずつですが話を進めてきました

とは言え、土地が無いところからスタートなので、
先ずは土地探しから進めていこうという事で
早速いくつか見に行く事に・・・
雨の中、他にもいくつか見て回りました


予算も当然ありますが、先ずは住む場所って
生活する上で、非常に重要ですからね

じっくり検討してもらいたいと思います

↓ ランキング投票 ↓ になります。
にほんブログ村
どちらも、『ポチッ』と宜しくお願いします

ちょっと変わったプリンを頂きましたので・・・

「黒豆プリン
」
瓶詰め仕様の
なんだか興味深いプリンです。
でも、まだ食べてませんが・・・

ほら・・・
黒豆がそのまんま
入ってるんです!
黒豆大好きなので、すごく美味しそうです
冷やして、近々食べることにします
↓ ランキング投票 ↓ になります。

にほんブログ村
どちらも、『ポチッ』と宜しくお願いします

「黒豆プリン
」瓶詰め仕様の
なんだか興味深いプリンです。
でも、まだ食べてませんが・・・

ほら・・・
黒豆がそのまんま
入ってるんです!
黒豆大好きなので、すごく美味しそうです

冷やして、近々食べることにします

↓ ランキング投票 ↓ になります。
にほんブログ村
どちらも、『ポチッ』と宜しくお願いします

昨日の仕事

結構な大雨
の悪天の中、先日依頼があった
木造住宅の耐震診断調査に行ってきました

昭和28年頃に
建った住宅なので、
かれこれ築57年くらい
になるでしょーか
診断の対象が昭和56年以前の
住宅なので、さすがに古いものばかりです

一通り、間取りや
壁の位置なども
チェックし、床下や

天井裏(小屋裏)なども
入念にチェックします。
数回のリフォームで
綺麗になっていますが、さすがに裏側は
57年の歴史を感じますね~
こんな感じで現地調査は終了。
持ち帰って、図面を作り、計算をして
耐震診断報告書を作成します

いつも応援、有難うございます~

にほんブログ村
↑ ↑
どちらも『ポチッ』と宜しくお願いします!

結構な大雨
の悪天の中、先日依頼があった木造住宅の耐震診断調査に行ってきました

昭和28年頃に
建った住宅なので、
かれこれ築57年くらい
になるでしょーか
診断の対象が昭和56年以前の住宅なので、さすがに古いものばかりです

一通り、間取りや
壁の位置なども
チェックし、床下や
天井裏(小屋裏)なども
入念にチェックします。
数回のリフォームで
綺麗になっていますが、さすがに裏側は
57年の歴史を感じますね~

こんな感じで現地調査は終了。
持ち帰って、図面を作り、計算をして
耐震診断報告書を作成します


いつも応援、有難うございます~

にほんブログ村
↑ ↑
どちらも『ポチッ』と宜しくお願いします!
何週間か前に、ネットで注文していたモノが・・・
やっと届きました

「食べるラー油」です。
最近、すごく人気です
TVなんかで知って
スーパーや百貨店などに買いに行くも、既に
長期売り切れ状態
買えないと、ますます欲しくなるものです
なので、ネットを検索していると・・・
美味しいと有名だったので、「京都ホテルオークラ」のを
注文
なんと、4週間待ちでした

100g瓶を2本セットで、
約2700円程しましたが・・・
早速・・・

開けてみると、美味しい
食べ方例が挟んで
ありました
チャーハンやパスタにも相性イイみたいです!

早速、あたたかいご飯に
かけて、先ずはシンプルに
頂きました
想像してたより辛くなくて、香ばしい味でした。
多分好きな人はめっちゃ好きなんでしょーが、
油は油なので・・・

豆腐サラダに
ドレッシングと共に
かけてみました!
こっちの方が、僕は好きですね~
他にも使い道、研究してみます!!
↓ ランキング投票 ↓ になります。

にほんブログ村
どちらも、『ポチッ』と宜しくお願いします
やっと届きました

「食べるラー油」です。
最近、すごく人気です

TVなんかで知って
スーパーや百貨店などに買いに行くも、既に
長期売り切れ状態

買えないと、ますます欲しくなるものです

なので、ネットを検索していると・・・
美味しいと有名だったので、「京都ホテルオークラ」のを
注文
なんと、4週間待ちでした
100g瓶を2本セットで、
約2700円程しましたが・・・
早速・・・
開けてみると、美味しい
食べ方例が挟んで
ありました

チャーハンやパスタにも相性イイみたいです!
早速、あたたかいご飯に
かけて、先ずはシンプルに
頂きました

想像してたより辛くなくて、香ばしい味でした。
多分好きな人はめっちゃ好きなんでしょーが、
油は油なので・・・

豆腐サラダに
ドレッシングと共に
かけてみました!
こっちの方が、僕は好きですね~

他にも使い道、研究してみます!!
↓ ランキング投票 ↓ になります。
にほんブログ村
どちらも、『ポチッ』と宜しくお願いします

今日、久々に回転寿司屋さんへ…
いつもは、お寿司だけのハズが…
魅力に負けて、ついつい頼んでしまいました(^_^;)
「黒ゴマと豆乳のモンブラン」
見た目より、かなりあっさりで美味しかったです!
回転寿司のデザートも侮れませんね~
いつも有難うございます~

にほんブログ村
↑ ↑
どちらも『ポチッ』と宜しくお願いします!
いつもは、お寿司だけのハズが…
魅力に負けて、ついつい頼んでしまいました(^_^;)
「黒ゴマと豆乳のモンブラン」
見た目より、かなりあっさりで美味しかったです!
回転寿司のデザートも侮れませんね~
いつも有難うございます~

にほんブログ村
↑ ↑
どちらも『ポチッ』と宜しくお願いします!
先日、新しいパソコン
を注文していたのですが・・・
本日宅配にて自宅に届きました

楽しみに待っていたので、なんだか長く感じました
早速、中身を確認・・・

今回は気分を変えて、
オプション設定でしたが、
ブルーのボディに
なかなか、スタイリッシュじゃないですか~

今日は、あまり時間が無い
ので、設定は明日以降
じっくりとしたいと思います。
なんだか、今日は蒸し暑い一日でしたので・・・

パソコンより、
こっちの方が
興味ありました

上のクッキーがサクサクで
美味しかったです
明日は晴れるかな??
↓ ランキング投票 ↓ になります。

にほんブログ村
どちらも、『ポチッ』と宜しくお願いします
を注文していたのですが・・・本日宅配にて自宅に届きました

楽しみに待っていたので、なんだか長く感じました

早速、中身を確認・・・
今回は気分を変えて、
オプション設定でしたが、
ブルーのボディに

なかなか、スタイリッシュじゃないですか~

今日は、あまり時間が無い
ので、設定は明日以降
じっくりとしたいと思います。
なんだか、今日は蒸し暑い一日でしたので・・・
パソコンより、
こっちの方が興味ありました

上のクッキーがサクサクで
美味しかったです

明日は晴れるかな??

↓ ランキング投票 ↓ になります。
にほんブログ村
どちらも、『ポチッ』と宜しくお願いします

カレンダー
| 12 | 2026/01 | 02 |
| S | M | T | W | T | F | S |
|---|---|---|---|---|---|---|
| 1 | 2 | 3 | ||||
| 4 | 5 | 6 | 7 | 8 | 9 | 10 |
| 11 | 12 | 13 | 14 | 15 | 16 | 17 |
| 18 | 19 | 20 | 21 | 22 | 23 | 24 |
| 25 | 26 | 27 | 28 | 29 | 30 | 31 |
カウンター
プロフィール
HN:
TaKe 嶽下 康弘(タケシタ ヤスヒロ)
年齢:
47
HP:
性別:
男性
誕生日:
1978/07/05
職業:
一級建築士
趣味:
グルメ、ジョギング、ファッション、お笑い、パソコン、ギター、イタリア等
自己紹介:
大阪・堺市の建築事務所
『Studio REI』 の代表です。
ブログは気まぐれですが、
気楽に続けようと思います。
コメントやリンクも
お待ちしております(^_^)v
『Studio REI』 の代表です。
ブログは気まぐれですが、
気楽に続けようと思います。
コメントやリンクも
お待ちしております(^_^)v
最新コメント
[03/27 KennethBof]
[04/28 Take]
[03/14 かな]
[04/07 Take]
[04/07 HAL]
[03/13 Take]
[03/11 haru]
[10/04 Take]
[10/03 HAL]
[07/02 Take]
[06/30 かな]
[02/05 Take]
[02/04 きままなマーシャ]
[02/01 Take]
[02/01 Take]
カテゴリー
お気に入り Blog リンク
リンク
石田歯科医院・大阪府和泉市
S design 一級建築士事務所
オオハタミツオ建築設計事務所
不動産買取専門店 ユニバーサル
(一社)和歌山県建築士会
アーキテクツ・スタジオ・ジャパン㈱
建築家紹介センター
建物を建てたい方にお近くの建築家を紹介
店舗設計紹介サービス
店舗を新築・改装したい方に店舗設計事務所・デザイナーを紹介
最新記事
(11/17)
(10/31)
(10/02)
(09/30)
(09/25)
アーカイブ
ブログ内検索
アクセス解析





