[PR]上記の広告は3ヶ月以上新規記事投稿のないブログに表示されています。新しい記事を書く事で広告が消えます。
(前回の記事⇒http://ytkimagure.blog.shinobi.jp/Entry/483/)
外部も併せて改修しています。
屋根を軽い素材に葺き替え、
外壁も綺麗に上から張ります!
室内も耐震要素となる耐震壁補強を終えたところでした

古い建物(特に昭和56年以前)は、現況の建築基準法より
耐震基準が低いので、木造の耐震補強では、
必ずと言ってもいい程、壁補強は重要になってきます!
耐震壁は必ず、脚元の土台から
天井裏の梁などの部材に固定
しなければ、役割を果たせません
ので、重要なチェックポイントです

また、写真のような構造用合板での補強は釘のピッチも
重要になりますので、しっかりチェックしておきました

この現場は、行政からの補助金を受けて行っている工事
なので、この後中間検査を受検して第三者のチェックも
しっかり受けます

リフォームとは言え、新築同様に慎重に、慎重に

↓ ランキング投票 ↓ になります。
にほんブログ村
いつも、有難うございます!
おかげさまで、励みになっていますm(_ _)m
どちらも、『ポチッ』と宜しくお願いします

天気予報で、雪は降ると 知ってはいましたが、
先週の金曜日を 上回る程の大雪(>_<)
車で出かけたのですが、帰りの高速道路も 通行止めになって、
オマケに一般主要道路も チェーン規制や通行止めで
帰れなくなって しまいました_| ̄|○
結局、車を置いてかろうじて動いていた 電車で帰る事にしましたが、
これもかなり ダイヤが乱れていて(>_<) 未だ、家に辿り着けません…
5時間ぐらいかかってるでしょーか(T_T)
寒いし、最悪な一日です(−_−;)
↓ ランキング投票 ↓ になります。
にほんブログ村
いつも、有難うございます!
おかげさまで、励みになっていますm(_ _)m
どちらも、『ポチッ』と宜しくお願いします

土地を見て欲しいとの事で、一緒に見に行ってきました

現地はこんな感じ・・・
結構な荒れ地ですが、
実は、写真の右側の景色は
一面、海が見渡せる絶景でして・・・
(お見せすると、場所が解っちゃいますので今回は
)この土地に別荘を建築したいという依頼です

しかも、こんな感じの崖地です!
でも、確かにオーシャンビューの素晴らしい立地!
色々と問題はありそうですが、面白くなりそうです。
具体的な計画までは、まだまだ先ですが、
少しワクワクするお話でした♪
さてさて、一体どうなるのでしょーか??
↓ ランキング投票 ↓ になります。
にほんブログ村
いつも、有難うございます!
おかげさまで、励みになっていますm(_ _)m
どちらも、『ポチッ』と宜しくお願いします

「囲みの家」のレポートです
(前回の記事⇒http://ytkimagure.blog.shinobi.jp/Entry/492/)
外部の木製スクリーンも
綺麗に着色が終わり、
黒の外壁に合う茶系の
色に仕上がりました!
室内も、全体的に
仕上ってきました!
↑ ↑ ↑ はエントランスの間接照明
綺麗にクロスを張り終えてますが、どんな明かりに
なるのか?? 照明点灯までのお楽しみです!
吹抜け廻りも着々と仕上ってきましたね~
アクセントの板張りも
雰囲気抜群でした!
リビングもこの通り、
綺麗な真っ白のクロスで
統一しました。
完成時に見えてくる、「木部」を
より一層、引き立たせる上に、部屋全体が明るく、
シンプルなイメージになります
早く、化粧の大黒柱や床が見たくなりますね~
次回へ続く・・・
↓ ランキング投票 ↓ になります。
にほんブログ村
いつも、有難うございます!
おかげさまで、励みになっていますm(_ _)m
どちらも、『ポチッ』と宜しくお願いします

あいにくの雪だったので・・・
久々に溜まっていた購読誌を読む事に
定期購読本なのですが、
なんだか、アッと言う間に
何冊も未読が溜まって
しまいます
おっ!馬淵前国交大臣!
短い任期でしたが・・・
僕は個人的には適任だと思っていましたけど・・・
記事には、「建築基本法」の制定案についての話が・・・
設計・施工・監理の三権分立をどのように整理するのか、
建築の在り方そのものについて・・・語られていました。
数年前の耐震偽装の問題から、「建築基準法」や「建築士法」
の見直しはされましたが、根本的な法の改正や新法制定の
動きが必要との論議です。
建築を取り巻く環境は刻々と変わりますが、
常に良いものができ、ユーザーに安心してもらえる法整備と
我々プロの高い意識だけは、いつも必要だと思いますね
↓ ランキング投票 ↓ になります。
![]()
にほんブログ村
いつも、有難うございます!
おかげさまで、励みになっていますm(_ _)m
どちらも、『ポチッ』と宜しくお願いします
今朝目覚めて、窓を開けると・・・
おぉ・・・
こんな雪を見るのは
久しぶりでした
ホントなら、なかなか見ない雪景色を楽しんでも良かったの
ですが・・・ 今日だけは嬉しくありませんでした
・・・と言うのも、今日2月11日は以前から申し込んでいた
市民マラソンの開催日だったんです
朝から事務局に問い合わせると・・・
「中止」。。。
結構、練習してきたのにぃ
なんてツイてないの~
まぁ、こんな雪積もってたら無理ないかぁ・・・(苦笑)
↓ ランキング投票 ↓ になります。
![]()
にほんブログ村
いつも、有難うございます!
おかげさまで、励みになっていますm(_ _)m
どちらも、『ポチッ』と宜しくお願いします
仕事の打合せで外出したので、久々に外ランチを
おなじみ和歌山市にある 「土風家」(とふや)へ
(お店HP⇒http://www.e-tofuya.co.jp/)
お腹が空いていたので、
何だか、ガッツリ気分でした!
僕は「しょうが焼き定食」。濃い目の味付で美味しい!
一緒に行った人は、
「ハラミ焼き肉定食」
美味しそうでしたぁ。
二人とも、昼からかなりガッツリ頂きました
ご飯が進む究極のメニューですね~♪
さすがに、お腹いっぱいになりました
↓ ランキング投票 ↓ になります。
![]()
にほんブログ村
いつも、有難うございます!
おかげさまで、励みになっていますm(_ _)m
どちらも、『ポチッ』と宜しくお願いします

(前回の記事⇒http://ytkimagure.blog.shinobi.jp/Entry/489/)
内装のクロス工事も、順調に進んでいます!
2階はほぼ貼り終えていました

ちょっと写真が暗く
なっちゃいましたけど・・・
「和室」は少し落ち着きのある
色を基調にしました!
こちら、「リビング」
天井はクロスを張り終えました。
内装が仕上ってくると、
だんだん、明るくなってきました

仕上りまで、もう少し♪ 楽しみです

↓ ランキング投票 ↓ になります。
にほんブログ村
いつも、有難うございます!
おかげさまで、励みになっていますm(_ _)m
どちらも、『ポチッ』と宜しくお願いします




接続できなかったり、長文書いてアップしようとしたら、
フリーズしたり・・・
結構ストレスです。。。

↓ ランキング投票 ↓ になります。
にほんブログ村
いつも、有難うございます!
おかげさまで、励みになっていますm(_ _)m
どちらも、『ポチッ』と宜しくお願いします

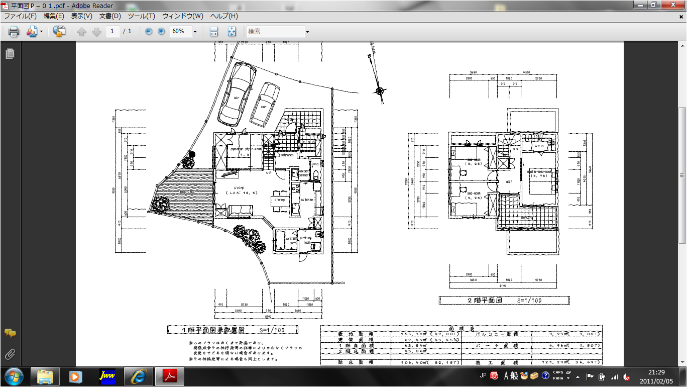
今回のプランは、敷地がかなりの変形地

普通は難しく考えてしまいますが・・・
特徴ある敷地は、意外と答えが見えてくるものです

・・・と言っても、結構頭を悩ませましたが

初回提案、お客様に気にいってもらえるか??
ドキドキ楽しみです

↓ ランキング投票 ↓ になります。
にほんブログ村
いつも、有難うございます!
おかげさまで、励みになっていますm(_ _)m
どちらも、『ポチッ』と宜しくお願いします

| 12 | 2026/01 | 02 |
| S | M | T | W | T | F | S |
|---|---|---|---|---|---|---|
| 1 | 2 | 3 | ||||
| 4 | 5 | 6 | 7 | 8 | 9 | 10 |
| 11 | 12 | 13 | 14 | 15 | 16 | 17 |
| 18 | 19 | 20 | 21 | 22 | 23 | 24 |
| 25 | 26 | 27 | 28 | 29 | 30 | 31 |
『Studio REI』 の代表です。
ブログは気まぐれですが、
気楽に続けようと思います。
コメントやリンクも
お待ちしております(^_^)v
石田歯科医院・大阪府和泉市
S design 一級建築士事務所
オオハタミツオ建築設計事務所
不動産買取専門店 ユニバーサル
(一社)和歌山県建築士会
アーキテクツ・スタジオ・ジャパン㈱
建築家紹介センター
建物を建てたい方にお近くの建築家を紹介
店舗設計紹介サービス
店舗を新築・改装したい方に店舗設計事務所・デザイナーを紹介





