[PR]上記の広告は3ヶ月以上新規記事投稿のないブログに表示されています。新しい記事を書く事で広告が消えます。
昨夜の事ですが・・・
今年2回目の夏祭りに行ってきました
(1回目⇒http://ytkimagure.blog.shinobi.jp/Entry/414/)
・・・と言っても、昨日も当然仕事でしたので、
仕事を20:00頃終えて、急いで参加しました
前回の夏祭りも
ウチの近所でしたが、
今回も近所の割と大きな公園で
開催された地元の夏祭り
かなり沢山の人が来ていましたので、熱気ムンムン
で暑かったです
まぁ、夏の雰囲気だけでも味わおうと
半ば無理やりの参加でした(笑)
あまりの暑さに滞在30分程度で、
ベビーカステラを買って帰りました。。。
まっ、いっかぁー
にほんブログ村
どちらも、『ポチッ』と宜しくお願いします

今回から『囲みの家』と題して紹介していこうと思います

(前回の記事⇒http://ytkimagure.blog.shinobi.jp/Entry/409/)
現在、プランも決まり、実施設計の最中ですが・・・
工期の都合もあり、ほぼ同時進行で工事見積りも
お願いし始めています

(工務店さんには、図面資料が少なくてご迷惑をお掛けしてますが
)あとは、お施主様とカタログやサンプルを見ながら仕様を
選んでいるところです

外観パースも作成しましたが、
「Google SketchUp」を使用して
もう少し立体イメージがしやすくなる資料も作成中

模型と併せて、必需品ですので頑張って作ります

来月には確認申請を下ろし、地鎮祭~着工できるように
急ピッチで進めてます

↓ ランキング投票 ↓ になります。
にほんブログ村
どちらも、『ポチッ』と宜しくお願いします


(前回の記事⇒http://ytkimagure.blog.shinobi.jp/Entry/422/)
仕込みを終えて、
いよいよ土台の敷き込みです

ここに来て、いよいよ木材の工事に入ってきました。
でも実は、この日は大工さんだけでもなくて・・・
電気屋さんや水道屋さんも一緒に現場入り

なので、なんとなく現場は混雑気味でした(笑)
お盆前にある程度済ませておかなきゃならない工事が
色々とありまして・・・ 工事が重複してやりにくそう

そんなこんなで、
土台敷きまで済ませて、
お盆明けに建て方工事に
なります
お施主様も楽しみにしていますので、当日は晴れる事を祈りたいと思います

↓ ランキング投票 ↓ になります。
にほんブログ村
どちらも、『ポチッ』と宜しくお願いします

出掛けたついでに、久々に行きたかったお店へ

大阪・堺市にある
「かん袋」という
甘味処です。
(お店情報⇒http://www.kanbukuro.co.jp/)
「くるみ餅」で超有名なお店なんですよ~
多い日には、行列も出来る人気店です

なんと、鎌倉時代からの
老舗なんです

注文待ち番号札が
漢数字で、なんだかレトロですよねー

このお店の定休日は毎週火曜日と水曜日なので、
ちょうど、僕の休日と重なるんです

だから、近くに住んでながら滅多に食べられないという訳

20分程待ちましたが・・・
3人前を無事購入

なぜ3人前??
ここの1人前はちょっと量が少なめなんです

だからちょっと欲張ってしまいました

そんで、早速・・・
見た目はこんな感じ

白玉の周りのミドリのが、
くるみ餡で、甘くって
ホントに美味しいんですよ~

洋風スイーツもイイですけど、たまには和のスイーツも
美味しいですね~

↓ ランキング投票 ↓ になります。
にほんブログ村
どちらも、『ポチッ』と宜しくお願いします


僕は、お盆は今日だけお休みを頂いて、お盆供養に
行ってきました
やっぱ、人多かったです~
朝から行ったので、なんとか昼前にお寺を出る事が
出来たので、久々にランチでも
・・・
僕は「ロコモコライス」
もちろん半熟卵乗せ♪
妻は、こちらの
「タコライス」を
頂きました

オニオンスープとドリンク(アイスティー)が付いて
850円でした
ロコモコなんて、食べたの何年ぶり??って程、久々でした
でも美味しかったですよ~
一日だけの休日もつかの間。。

また明日からお仕事頑張ります

↓ ランキング投票 ↓ になります。
にほんブログ村
どちらも、『ポチッ』と宜しくお願いします

仕事をしているので、世間の連休は当然仕事です

でも、明日は一日だけお休みをもらいました

明日は大阪・夕陽丘のお寺にお盆の供養に行きます


あまりこのBlogで家族の事を書きませんけど・・・
ウチには、生きていれば2歳の娘がいました。
(親バカですが、僕に似て超可愛かったんですよ~
)去年のお盆から早いもので、もう1年です。
だけど、お盆だからといって特別な事をするわけではないのですが。
いつも近くにいると信じているので、明日はホント形式だけの
お盆供養ですから・・・
台風の影響で天気が不安定だけど・・・
明日は晴れるとイイなぁ。
↓ ランキング投票 ↓ になります。
にほんブログ村
どちらも、『ポチッ』と宜しくお願いします

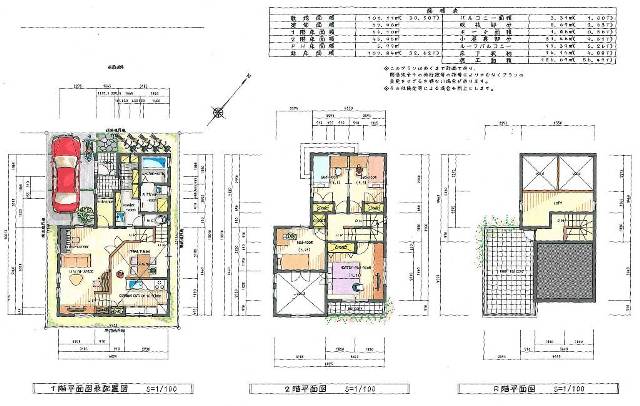
早速、平面図や外観パース等・・・
プレゼンテーション用の資料を作成しました

んで、今回のプランの
コンセプトとしては・・・
「狭小地に建つ5人家族の家」・・・とでも言いましょうか

見所ですが・・・
①狭小地の為、屋上にプライベートGardenを提案
②スキップフロアーと大容量床下収納
③家族全員が「個」と「団欒」を持つ
④隣家の視線を内と外の高低差で解消
その他、色々

厳しい条件でしたが、
なんとか、納得のいく
プランにまとまったと思います

これから、プレゼン作りにかかります

↓ ランキング投票 ↓ になります。
にほんブログ村
どちらも、『ポチッ』と宜しくお願いします

先日から工事を進めている「歯科クリニック」の
建築工事の現場確認に行ってきました。
(前回の記事⇒http://ytkimagure.blog.shinobi.jp/Entry/416/)
基礎工事も終わり、建て方前に、床下配管の仕込み
をある程度、済ませておきます
歯科クリニックは診察台に給排水や電気が
ピンポイントで必要になりますので、
事前の位置確認は非常に重要になります
暑い中、現場で作業する職人さんには、
ホント頭が下がります
明日はエアコンの隠蔽配管工事の立会いをし、
現場はお盆休みに入ります
お盆明けには、いよいよ建て方工事です!
楽しみになってきました
↓ ランキング投票 ↓ になります。
にほんブログ村
どちらも、『ポチッ』と宜しくお願いします

高校時代にお世話になった先生と、十数年ぶりに
お会いしました
これまでも、たまに電話を頂いてお話したり・・・という事はありましたが、
お会いしてゆっくりお話するのはホント久しぶりでした

なんでも、来年の春に定年退職をお迎えになるらしく、
少し時間が出来たので・・・との事でした。
実は、僕にとっても良いタイミングでした。
色々と相談したい事もありましたし・・・

この先生は、奈良や和歌山での人脈も広く、
当然 “建築業界” にも精通している先生なので、
非常に為になるお話を伺う事ができました。
僕も・・・
仕事観や人生観、独立起業の事、進学の事などについて
色々とお話を聞いて頂き、良いアドバイスを得る事が
できました

なんだか、“気持ち”だけは前向きになった気がします

でも上げてもらった、モチベーションを保たないとね~

頑張ります


↓ ランキング投票 ↓ になります。
にほんブログ村
どちらも、『ポチッ』と宜しくお願いします

数年前から500円玉貯金を続けています

もう、6年?7年??ぐらいになるでしょーか

他愛もない理由で始めたことですが・・・
今では、買い物をしてもワザと500円玉でおつりが
出るように計算して支払いをするのが
癖になってしまいました

もちろん、財布の中に500円玉があっても、
お札で支払い、500円は使いません。・・・と言うか、
使えなくなってしまいました

だから、いつも
小銭入れはこんな感じ

20歳代前半までは貯金なんて、したこともなかったのに(笑)
“きっかけ”ってありますよね~

P.S. 特に貯めて欲しいモノを買う訳でもなく・・・
それと・・・両替の時、少し恥ずかしい

↓ ランキング投票 ↓ になります。
にほんブログ村
どちらも、『ポチッ』と宜しくお願いします

| 12 | 2026/01 | 02 |
| S | M | T | W | T | F | S |
|---|---|---|---|---|---|---|
| 1 | 2 | 3 | ||||
| 4 | 5 | 6 | 7 | 8 | 9 | 10 |
| 11 | 12 | 13 | 14 | 15 | 16 | 17 |
| 18 | 19 | 20 | 21 | 22 | 23 | 24 |
| 25 | 26 | 27 | 28 | 29 | 30 | 31 |
『Studio REI』 の代表です。
ブログは気まぐれですが、
気楽に続けようと思います。
コメントやリンクも
お待ちしております(^_^)v
石田歯科医院・大阪府和泉市
S design 一級建築士事務所
オオハタミツオ建築設計事務所
不動産買取専門店 ユニバーサル
(一社)和歌山県建築士会
アーキテクツ・スタジオ・ジャパン㈱
建築家紹介センター
建物を建てたい方にお近くの建築家を紹介
店舗設計紹介サービス
店舗を新築・改装したい方に店舗設計事務所・デザイナーを紹介





